切换到宽版
  • 26阅读
  • 2回复

[奇观]宁波慕尚集团总部大楼 / 上海秉仁建筑师事务所//济南诗莉莉度假酒店设计 / 胜景几何设计研究中心(原李兴钢建筑工作室)[57P] [复制链接]

上一主题 下一主题
在线jjybzxw

UID: 551814

 

发帖
236186
金币
813489
道行
2006
原创
2459
奖券
3500
斑龄
44
道券
1548
获奖
0
座驾
设备
摄影级
在线时间: 50313(小时)
注册时间: 2008-10-01
最后登录: 2026-03-24
只看楼主 倒序阅读 楼主  发表于: 03-15
— 本帖被 xgch 执行加亮操作(2026-03-15) —
宁波慕尚集团总部大楼 / 上海秉仁建筑师事务所s[41P]


© 存在建筑
宁波慕尚集团是一家总部设于中国的领先时尚男装公司,其品牌倡导“有爱、年轻、创新、信任、活力”。2018年起,经过5年的设计和建造,位于宁波的慕尚集团总部新大楼即将建成并投入使用。

▲办公总部鸟瞰© 存在建筑
为一个服装企业设计集团总部大楼,犹如服装设计师为客人量身定制衣服。建筑师和业主对设计的敏感和直觉相互交融,用空间、材料、光影编织出建筑与时装的邂逅。建筑与城市关系的处理、内部空间氛围的设计、整个项目精益控制的过程,通过层层递进的深化和雕刻,建筑师手执剪刀和针线,逐步塑造出鲜明的企业形象。

▲办公总部西南侧入口© 存在建筑
空间秩序:向上生长的企业总部
慕尚集团总部大楼的设计理念兼顾品牌主张和城市的公共性。在由下而上的建筑空间序列中,从公共性最强的品牌门店,经由展示发布中心、员工办公及活动空间,逐步向上过渡到私密性最强的总部办公,最终形成了从大地延向天空的空间层次。建筑的表皮和材质通过体量反差、虚实对比、色彩冲突和材质变化营造出不同的空间质感,让建筑在彰显品牌自身文化表达的同时创造出积极的城市公共空间。

▲从地面向上延续的设计理念与体量分析 © 上海秉仁建筑师事务所



▲虚实、冲突而多变的立面体量© 存在建筑
塑造氛围:性格迥然的主题空间
建筑底部为品牌门店、商业、餐厅等公共空间,凹凸的体块营造出人性化的尺度和多样的空间感受,层叠的黑色盒子勾勒出时尚跃动的建筑轮廓。临近城市道路的建筑界面向外打开,将建筑内部的公共空间延展向外,吸引人群的流动与汇集。

▲向城市打开的入口© 存在建筑

▲向城市打开的入口© 存在建筑

▲黄昏时分的入口广场© Heimu Studio 黑水

▲黑色盒子向内部大堂空间的界面延伸©Heimu Studio 黑水
建筑上部为不同属性的办公空间,内部不同尺度、不同标高的内庭结合景观绿化成为办公部分的共享界面,引导各办公组团间的渗透与互动,塑造复合的办公场所。插入中庭的螺旋楼梯成为强烈的空间焦点,吸引来到这里的人们认识慕尚、探知慕尚。

▲多维度空间设计© 上海秉仁建筑师事务所


▲围绕螺旋楼梯组织的共享中庭空间© Heimu Studio 黑水

▲多层界面围合下的共享中庭© Heimu Studio 黑水
顶部的总部办公引入宁波传统水乡意象,将古典园林融入办公空间设计,形成“大园套小园,园中有园”的空间格局,丰富了整体空间的层次,于繁华闹市之中,创造一片清净之地。

▲屋顶庭院中的园林办公意象© Heimu Studio 黑水
建筑表情:如织物般的极致轻盈
立面体系的设计试图探索将时装文化融入建筑的可能性,建筑的体量对比同织物间的不同质感产生对话。建筑上部是个巨大轻盈漂浮的白色盒子,通过三层粗细不同的金属杆件错落编织而成,1.4米的幕墙空腔深度有助于实现表皮的空气感。立面朦胧的纤维质感柔和地消隐了上层体块的重量感。室内无柱悬挑结构的设计,内层幕墙玻璃结构自立的视觉感强化了空间轻盈的极致体验。

▲“漂浮的盒子”概念手绘 © 上海秉仁建筑师事务所


▲竹林幕墙肌理效果© 存在建筑
建筑底部错落的黑盒子表皮汲取宣纸的纤维肌理,运用黑色玻璃幕墙与彩釉纹理交织,折射出城市活动的奇妙影像,在界定其公共属性的同时,实现了建筑外观的“重”与室内的“透”。杆件支撑的沉头式抓点设计呈现了建筑一丝不苟的精致度。


▲黑色彩釉纹理研究© 上海秉仁建筑师事务所



▲与彩釉纹理交织的黑色玻璃幕墙© 存在建筑
设计从时装与建筑的共同本源出发,探讨空间、尺度与表皮的逻辑生成,并层层递进到与园林、与艺术、与文化关系的思考,将对自然、织物、光影的感知渗透到建筑设计的各个细节层面,塑造了鲜明的企业品牌形象。对幕墙设计的精细化考量,保证了方案深化的有序进行以及项目的完成度,让慕尚集团总部大楼成为当代建筑精益设计的范本。

▲落日余晖下的慕尚集团总部© 存在建筑

▲内庭院看向慕尚集团总部© 存在建筑

▲夜幕下的慕尚集团总部© 存在建筑
项目图纸

▲总平面图© 上海秉仁建筑师事务所

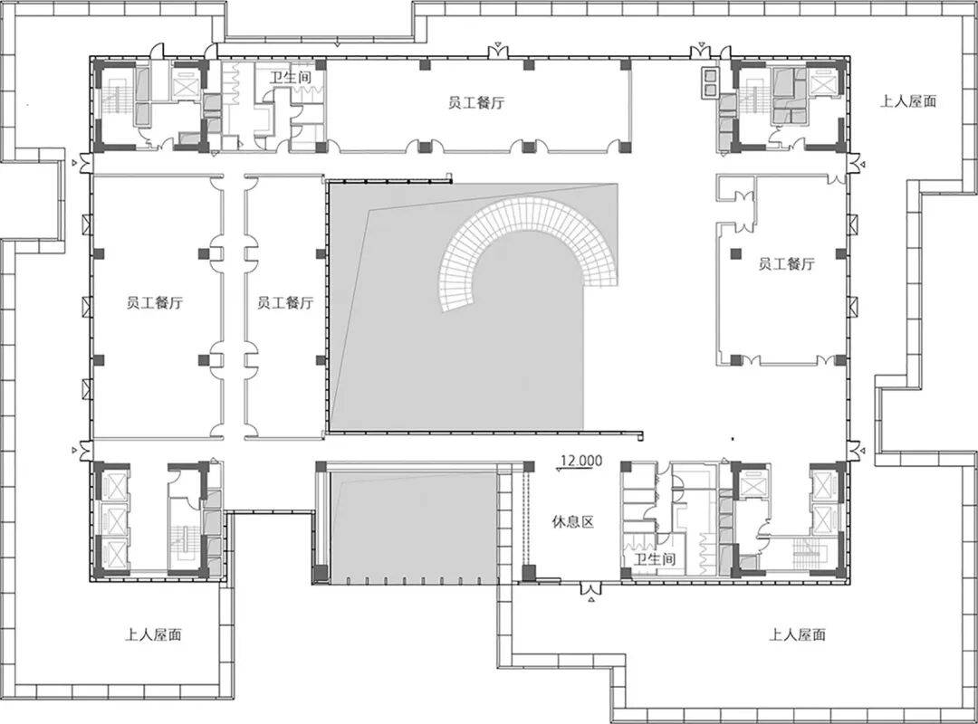
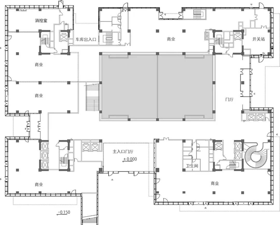
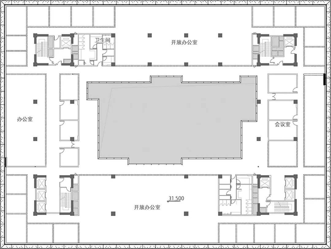
▲一层平面图© 上海秉仁建筑师事务所

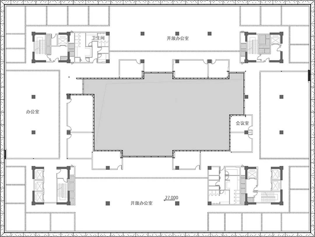
▲二层平面图© 上海秉仁建筑师事务所

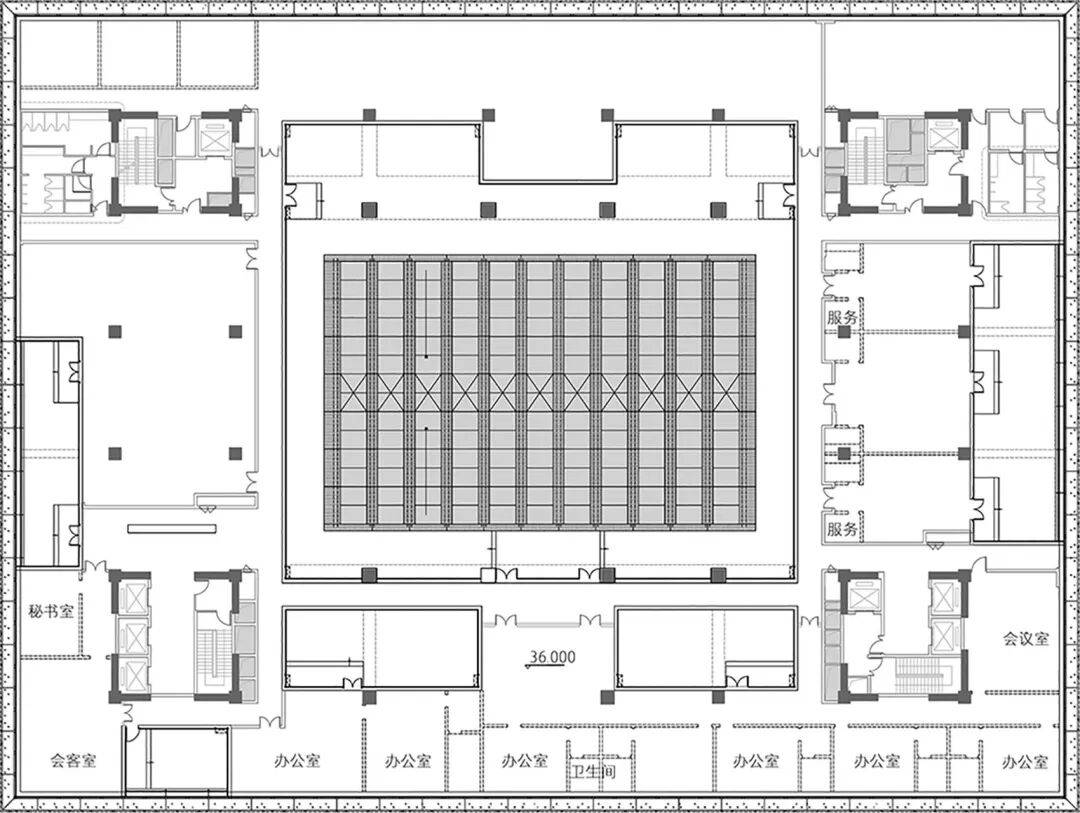
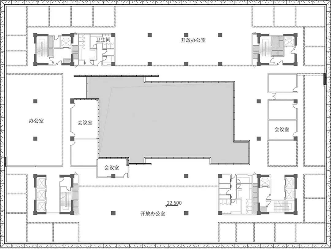
▲三层平面图© 上海秉仁建筑师事务所

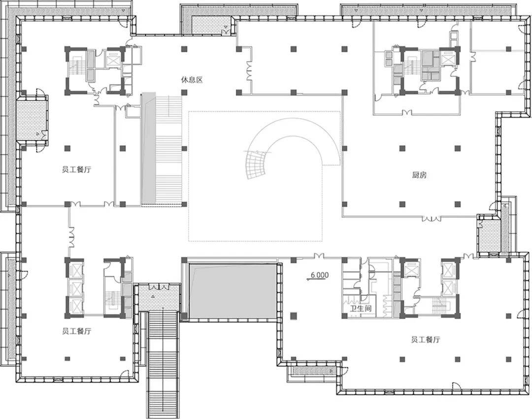
▲四层平面图© 上海秉仁建筑师事务所

▲五层平面图© 上海秉仁建筑师事务所

▲六层平面图© 上海秉仁建筑师事务所

▲七层平面图© 上海秉仁建筑师事务所

▲八层平面图© 上海秉仁建筑师事务所
▲北立面图© 上海秉仁建筑师事务所
▲东立面图© 上海秉仁建筑师事务所

▲南立面图© 上海秉仁建筑师事务所

▲西立面图© 上海秉仁建筑师事务所


▲剖面图© 上海秉仁建筑师事务所
项目名称:宁波慕尚集团总部大楼
项目类型:商办、总部办公
设计方:上海秉仁建筑师事务所(普通合伙)
项目设计:2018
完成年份:2025
设计团队:主创建筑师: 马庆禕,设计团队: 颜莺 杨远 李唯 赵建霞 陈溟澈 吴承宇 陈德辉 钱泓多 孟泽源 徐天琛
项目地址:浙江省宁波市鄞州区启明路
建筑面积:51404.09㎡
摄影版权:存在建筑,黑目摄影
合作方:
建筑施工图:宁波市城建设计研究院有限公司
幕墙施工图:上海熙玛工程顾问有限公司
景观施工图:浙江金峨生态建设有限公司
结构设计: 宁波市城建设计研究院有限公司
景观设计: 上海秉仁建筑师事务所(普通合伙)
室内设计: AIR Architects室内设计公司
泛光设计:上海倘思照明设计有限公司
土建施工: 浙江万华建设有限公司
幕墙施工:浙江中天方圆幕墙有限公司
客户:慕尚控股集团有限公司
材料:黑色彩釉玻璃/白色彩釉玻璃/深灰色铝板/浅灰色铝板
品牌:黑色彩釉玻璃/白色彩釉玻璃-吴江南玻华东工程玻璃有限公司;深灰色铝板/浅灰色铝板-扬州昌祥铝业
========================================================================================================================================

济南诗莉莉度假酒店设计 / 胜景几何设计研究中心(原李兴钢建筑工作室)[16P]


齐鲁文脉为笔
绘就当代鹊华秋色图
当鹊华秋色图在鹊山生态文化园晕染开,当千年齐鲁文脉遇见诗莉莉的浪漫基因,一座浸润着自然与人文气息的度假酒店,正悄然生长。

《鹊华秋色图》
它不执着于传统符号的复刻,而是以诗意笔触,将齐鲁风骨藏进檐角廊下,让每一次停留都成为与文化、与自然的温柔相拥。而诗莉莉做为诗莉莉酒店集团旗下的核心品牌,她强调精神文化共鸣的核心理念与千年的齐鲁文化不谋而合。
初心:让齐鲁精神
生长于当代时光
齐鲁的韵味,从不是凝固的建筑形态,而是藏在 “礼序与自然共生” 里的从容。济南诗莉莉度假酒店的设计,便循着这份初心,让文化不彰自显。

核心设计理念 “鹊华秋色” 贯穿始终,通过建筑造型、空间营造与景观布局,重现赵孟頫笔下清旷恬淡的秋景意境。屋顶设置的望鹊亭、望华亭与连廊 “鹊华廊”,形成抽象的山水画卷,让宾客在登高远望时,与鹊山、华山形成跨越时空的视觉对话。

“上‘台’、中‘房’、下‘园’” 的空间策略更是点睛之笔:首层架空打造檐下园林,让自然景观渗透至建筑核心;中层布局客房,确保每间客房都能收获最佳景观视野;顶层构建屋顶花园,形成 “从入园观画到登亭入画” 的完整体验闭环,三层空间层层递进,实现自然与建筑的深度交融。
空间:三层园境
解锁立体浪漫
「檐下园林:流动的公共客厅」
建筑首层全部架空,打破传统酒店 “封闭大堂” 的局限,通过一条贯穿公区与庭院的廊子,串联起十字形中央园林与 “两庭七院”,形成开放式漫游空间。墙面采用红色洞石 “横向分层 + 竖向错落” 的铺法,纹理粗犷且层次分明,恰好呼应《鹊华秋色图》中 “山峦层叠” 的自然意象;空间中心点设置泉水装置,借助感应技术模拟泉水 “由暗至明、由静至动” 的涌动过程,搭配灯光变化,呈现 “清泉石上流” 的动态画卷。

公区以大堂为核心枢纽,通过四条开放式路径连接大堂吧、儿童活动空间、汤泉、冥想颂钵、康体等功能区,宾客在 “行走” 中感知空间叙事。本土石材的厚重、木材的温润与藤编的灵动相互搭配,传递东方美学的质朴质感,再加上声、光、水的综合运用,让这里成为自然浸润下的身心疗愈场域 —— 都市的紧张节奏在此消解,取而代之的是平和与松弛的自然状态。


「架空客房:沉浸式景观居所」
客房围绕公区呈 “群山环抱” 态势,既保障公区的活力氛围,又确保客房的静谧私密。设计团队结合济南 “山水之城” 的特质,将客房分为园景、湖景、城景三大主题:园景房以鲁锦为灵感,大地色系搭配花鸟、几何纹样,与周边自然环境相得益彰;湖景房融入扎染工艺,蓝绿色系营造清新宁静的水韵氛围;城景房以绸缎质感为基调,黄棕色系呼应城市灯火与人文荟萃,成为连接城市景观与室内空间的色彩纽带。
客房布局充分尊重地形特征:坡地地形中,客房从高点沿坡地向下层层布置,确保每层客房享有无遮挡的景观视野;谷地地形则通过控制两侧客房间距,减少对视,保障居住私密性。室内延续 “松弛治愈” 的基调,家具主体以木色、咖色与白色为基底,将色彩表达集中在抱枕、床盖等可替换软包上,既保持空间的统一性,又为后续更新留下弹性。

「檐上景望:屋顶的山水画卷」
屋顶并非简单的功能载体,而是被打造为 “可漫游的景观画卷”。以《鹊华秋色图》为灵感打造的 “望华亭”“望鹊亭”,由 “鹊华廊” 轻轻相连。凭栏远眺,华山轮廓朦胧,鹊山剪影悠远,仿佛穿越千年与古人共赏同款秋光。架空木地板步道蜿蜒其间,春日赏新绿,夏日观星空,秋日品层林,冬日赏落雪,每一步都踏在诗意里。宾客可经由公共楼梯登顶,在光影与绿植的交织中穿梭,远眺鹊山生态文化园的自然盛景与城市天际线。


味蕾:齐鲁风味
沉浸式味觉场域
餐厅作为酒店文化体验与生活方式的重要延伸,以 “齐鲁食韵 + 园林意境” 为核心,嵌入 “檐下园林” 与 “立体造园” 的空间体系中,既延续整体设计的文化脉络,又打造专属的味觉漫游体验。


全日餐厅采用开放式布局,以《鹊华秋色图》的抽象纹样为墙面装饰基底,搭配 “横向分层” 的红洞石吧台,与公区石材肌理形成呼应;顶部悬挂由传统灯笼重构的现代灯具,暖光透过木纹灯罩洒下,营造温馨的用餐氛围。餐位设计兼顾 “观景” 与 “社交”,靠窗区域设置临湖景观座,可远眺生态文化园的湖景与鹊山轮廓;中部则以低矮绿植隔断划分半私密社交区,满足家庭聚餐或好友小聚的需求。


温度:齐鲁山水间
疗愈秘境
温泉区嵌入首层檐下园林体系,紧邻汤泉与冥想颂钵区,延续 “自然重构 + 文化植入” 的设计逻辑。空间以 “泉脉映鹊华” 为主题,采用济南本地石材砌筑汤池肌理,池边点缀藤编休憩榻与鲁锦软饰,呼应整体东方美学基调;汤池布局借势造景,部分汤池临庭院而设,透过竹钢格栅可瞥见庭院跌水与乔木,泡澡时恍若置身自然环抱。同时融入疗愈功能,设置独立冥想汤池区,搭配声控灯光与自然白噪音系统,与公区 “身心疗愈场域” 理念一脉相承,让宾客在暖意中感受济南 “泉城” 特质与齐鲁慢生活的温润。

诗意:不止旅居
更是一场文化交流
这里不止是休憩的居所,更是读懂齐鲁的慢旅目的地。酒店不设封闭的边界,让园林成为连接人与人、人与自然的纽带。既能感受齐鲁文化的多元,又能触摸现代济南的活力。清晨在园林散步,听鸟鸣与水流和鸣;午后在露台煮茶,看光影在墙面流转;傍晚登屋顶望山,赏落日熔金;夜晚在庭院小坐,遇晚风与星空。济南诗莉莉度假酒店,以温柔笔触,将齐鲁秋韵与旅居浪漫融为一体,等待每一位旅人前来,赴一场与自然、与文化的诗意之约。

项目信息
项目名称:济南诗莉莉度假酒店设计
运营方:诗莉莉酒店集团
建筑设计公司:胜景几何设计研究中心(原李兴钢建筑工作室)
室内设计公司:FusionDesign蜚声设计
项目地点:山东,济南
项目类型:酒店
1条评分金币+35
xgch 金币 +35 辛苦了,感谢您无私奉献的精神! 03-15
山庄提示: 道行不够,道券不够?---☆点此充值☆
 
在线jjybzxw

UID: 551814


发帖
236186
金币
813489
道行
2006
原创
2459
奖券
3500
斑龄
44
道券
1548
获奖
0
座驾
设备
摄影级
在线时间: 50313(小时)
注册时间: 2008-10-01
最后登录: 2026-03-24
只看该作者 沙发  发表于: 03-15
宁波慕尚集团总部大楼与济南诗莉莉度假酒店:设计与文化融合的典范
宁波慕尚集团总部大楼:时尚与建筑的交响

设计理念与空间秩序

宁波慕尚集团总部大楼的设计理念巧妙融合了品牌主张与城市公共性,通过由下而上的空间序列,展现了从公共到私密的自然过渡。从品牌门店到展示发布中心,再到员工办公及活动空间,最终延伸至总部办公,这一设计不仅体现了企业的成长轨迹,也构建了与城市环境的和谐对话。建筑表皮与材质的精心选择,通过体量反差、虚实对比等手法,营造出丰富的空间质感,彰显了品牌文化的独特魅力。

主题空间与氛围塑造

建筑底部以品牌门店、商业和餐厅等公共空间为主,通过凹凸体块和黑色盒子的设计,营造出时尚而人性化的空间氛围。上部办公空间则通过不同尺度的内庭和景观绿化,促进了办公组团间的互动与渗透,形成了复合的办公场所。螺旋楼梯作为空间焦点,不仅引导人流,更成为展示企业形象的重要元素。顶部总部办公则融入了宁波传统水乡意象,将古典园林元素融入现代办公空间,创造了繁华闹市中的一片清净之地。

建筑表情与立面设计

立面设计探索了时装文化与建筑的融合,通过金属杆件的编织和幕墙空腔的设计,实现了建筑体量的轻盈与漂浮感。底部黑盒子表皮则汲取了宣纸的纤维肌理,通过黑色玻璃幕墙与彩釉纹理的交织,展现了建筑的精致与公共属性。这些设计细节不仅体现了建筑师对材料与光影的精湛运用,也彰显了慕尚集团作为时尚男装公司的独特品味。
济南诗莉莉度假酒店:齐鲁文化与现代旅居的融合

设计理念与文化传承

济南诗莉莉度假酒店以“鹊华秋色”为核心设计理念,通过建筑造型、空间营造与景观布局,重现了赵孟頫笔下的清旷恬淡秋景意境。设计团队巧妙运用“上‘台’、中‘房’、下‘园’”的空间策略,实现了自然与建筑的深度交融。这一设计不仅体现了对齐鲁文化的尊重与传承,也展现了现代建筑设计的创新与探索。

空间体验与景观营造

酒店空间分为檐下园林、架空客房和檐上景望三个层次,每个层次都充满了诗意与浪漫。檐下园林作为流动的公共客厅,通过开放式漫游空间和动态泉水装置,营造了自然浸润下的身心疗愈场域。架空客房则围绕公区呈“群山环抱”态势,确保了客房的静谧私密与景观视野的优化。檐上景望则通过屋顶花园和望鹊亭、望华亭的设计,让宾客在登高远望时与鹊山、华山形成跨越时空的视觉对话。

文化体验与味觉盛宴

餐厅作为酒店文化体验与生活方式的重要延伸,以“齐鲁食韵 + 园林意境”为核心,打造了专属的味觉漫游体验。全日餐厅采用开放式布局和抽象纹样装饰,营造了温馨的用餐氛围。同时,餐厅还注重观景与社交功能的结合,满足了不同宾客的需求。此外,酒店还通过温泉区和疗愈功能的设置,让宾客在暖意中感受济南“泉城”特质与齐鲁慢生活的温润。

总结与展望

宁波慕尚集团总部大楼与济南诗莉莉度假酒店的设计均体现了对文化传承与现代创新的深刻理解。慕尚集团总部大楼通过时尚与建筑的交融,展现了企业的独特形象与品牌文化;而济南诗莉莉度假酒店则通过齐鲁文化与现代旅居的融合,为宾客提供了一场与自然、与文化的诗意之约。这两个项目不仅为当代建筑设计提供了宝贵的经验与启示,也为我们思考如何更好地传承与发扬传统文化提供了有益的借鉴。

1条评分金币+6
xgch 金币 +6 回复认真,加分鼓励 03-15
如何不发帖就快速得到金币道行
 
在线姜谷粉丝

UID: 1569053

精华: 2
级别: 玉清道君

发帖
176280
金币
577434
道行
20030
原创
769
奖券
432
斑龄
0
道券
30
获奖
0
座驾
设备
摄影级
在线时间: 22057(小时)
注册时间: 2012-06-21
最后登录: 2026-03-24
只看该作者 板凳  发表于: 03-15
基于公开资料的宁波慕尚集团总部大楼建筑风格解析,综合设计理念、视觉特征及文化表达三个维度:

🧠 一、核心设计理念:时装与建筑的跨界融合
艺术跨界灵感
建筑以时装设计思维为灵感,通过体量反差、虚实对比、色彩冲突等手法,模仿服装的剪裁与层次感,体现"建筑是另一种语言的时装"的设计哲学 。
二元对立叙事
上部结构:白色悬浮立方体象征"云端竹林",采用金属编织表皮营造朦胧梦幻感;
下部基座:黑色玻璃盒子如"宣纸质感的折叠面料",折射城市光影,形成现实与超现实的对话

🏗️ 二、建筑形态与视觉特征
标志性结构
悬浮盒子:7米悬挑的无柱空间,通过4个核心筒+外圈悬挑支撑,实现360°景观视野 ;
双层表皮系统:
上部:1.4m深幕墙腔体,组合三层竖向金属杆件,模拟竹林编织肌理;
下部:双层黑色玻璃幕墙,强化质感对比 。
材料与色彩
白色部分:铝板+玻璃幕墙,搭配冷灰蓝玻璃,凸显现代洁净感;
黑色部分:哑光黑玻璃,营造神秘氛围 。
极简主义细节
隐藏式通风器替代传统开窗,保证立面纯净度;
采用竖明横隐幕墙系统,室内玻璃形成连续平面 。
⚙️ 三、技术创新与文化表达
精益设计系统
方案阶段即引入幕墙顾问,通过1:10节点模型验证可行性,确保设计落地精度 。
东方美学转译
"竹林"与"宣纸"元素将自然意象抽象为建筑语言,呼应品牌对东方文化的现代诠释 。
功能与美学平衡
4.5m层高下实现3m净高,整合VRV空调+新风系统,兼顾舒适性与视觉完整性 。
🏆 四、行业影响与奖项
该项目获 普罗奖商办建筑金奖与外立面金奖 ,成为时装品牌跨界建筑设计的标杆案例,体现慕尚集团"创新与差异"的品牌基因 。

注:建筑位于宁波鄞州区金源路628号,由上海秉仁建筑师事务所设计,2022年建成 。如需更多技术细节,可查阅设计事务所公开报告
1条评分金币+6
xgch 金币 +6 回复认真,加分鼓励 03-15
如何不发帖就快速得到金币道行
 
我有我可以
快速回复
限120 字节
认真回复加分,灌水扣分~
 
上一个 下一个