切换到宽版
  • 5阅读
  • 1回复

[奇观]宝山垃圾焚烧发电中心 / BAM百安木//上海Bar Vena / 即时设计研究所 [52P] [复制链接]

上一主题 下一主题
在线jjybzxw

UID: 551814

 

发帖
236186
金币
813489
道行
2006
原创
2459
奖券
3500
斑龄
44
道券
1548
获奖
0
座驾
设备
摄影级
在线时间: 50313(小时)
注册时间: 2008-10-01
最后登录: 2026-03-24
只看楼主 倒序阅读 楼主  发表于: 昨天 09:12
— 本帖被 xgch 执行加亮操作(2026-03-23) —
宝山垃圾焚烧发电中心 / BAM百安木[32P]



上海最新垃圾焚烧发电中心,年减碳超300万吨
上海在可持续废弃物处理设施领域迈出了重要一步,新落成的宝山垃圾焚烧发电中心由BAM百安木设计,是一座以城市生活垃圾为燃料的电厂。该项目原址为燃煤高炉,如今在上海的碳减排战略中承担着关键角色。通过取代旧有工业设施,并将垃圾从填埋场(温室气体最大排放源之一)转移,该中心每年可减少超过300万吨碳排放。这一新中心在探索循环经济的同时,也展示了垃圾处理基础设施如何演变为可持续的城市地标。





这座12.8万平方米的综合体包括两种废物处理方式:产生电能的焚烧发电装置和生产沼气的厌氧消化系统。在最佳效率下,四线焚烧炉日处理能力达3,000吨,同时,厌氧消化单元每天处理超过8,000吨湿垃圾。尽管体量庞大,BAM设计团队却有意识地避免了现代工业建筑中常见的"装饰棚屋"模式,而是采用伪装与融合的设计策略,即建筑与景观相结合,并叠加包括“垃圾博物馆”和多样化休闲设施在内的公共功能。该策略将这座原本单一的工业设施,塑造为一处充满活力的教育科普目的地,也是一处建筑景观交汇的新型城市地标。




不同于许多仅聚焦建筑本体的垃圾处理项目,BAM的设计视野延伸至整个场地,将建筑与其周边景观作为一个整体进行统筹与融合。建筑体量被塑造成一座“山体”,立面在视觉上模拟地质层理的形态与秩序。为满足消防安全需求,屋顶设有大型开口,使得建筑并非一个完全封闭的体量。由于立面具有良好的通透性,当人们近距离或从建筑内部向外体验时,这座建筑更像是一层“外壳”,而非传统意义上的封闭建筑体量;而从远处望去,它又呈现出极具存在感的、山岳般的整体形象,二者形成了鲜明对比。建筑并未以强势姿态压迫周边环境,而是通过开口与穿孔的处理方式,弱化其庞大的体量感,使其逐渐“退入”场地与景观之中。位于屋顶之上的 10 公顷公共公园进一步强化了这种建筑与景观的融合关系,为市民提供集休闲、教育与公共互动于一体的绿色空间,同时巧妙地遮蔽了下方的工业功能。整体而言,该项目形成了一种非常规的建筑类型,在其中,建筑与景观的边界被刻意模糊,呈现出一种介于二者之间的复合形态。






在游客入口广场,富有图案感的结构从工业立面中俏皮地浮现,形成了一片"微型城市”,其中容纳了充满活力的展览和休闲空间。参观者由此进入 “垃圾博物馆”,开启一段从自然历史到垃圾能源化的沉浸式体验之旅。




通过公众教育实现可持续性
“垃圾博物馆”通过一系列主题化空间,引导学生与公众了解“垃圾的故事”。在这些沉浸式环境中,传统的课本与讲授被暂时抛在一旁,参观者仿佛被带入一场穿越时间的旅程——从史前恐龙时代,到化石能源的诞生,再到工业革命,以及塑料与半导体等颠覆性发明的出现。随着参观动线的推进,观众逐渐直面垃圾问题所带来的巨大规模与现实压力,与此同时,这一过程也激发人们反思自身在应对废弃物挑战中的角色与责任,鼓励公众从“被动旁观者”转变为积极的参与者。

继续参观之旅,垃圾焚烧发电体验馆为参观者提供了近距离了解垃圾处理关键环节的机会,包括抓斗操作、控制室运行、焚烧、袋式除尘系统和涡轮机房操作。在涡轮机房,一场4D影院体验将"垃圾的故事"生动呈现,使参观者直观感受设施内部复杂而精密的运行机制。工厂参观的最后一站是占地10公顷的绿色屋顶公园,通过屋顶峡谷般的开口,参观者们得以再次窥见下方运转的垃圾处理设施。

宝山垃圾焚烧发电中心通过整合垃圾焚烧发电和厌氧消化两大设施,实现了垃圾处理领域的创新飞跃。这种整合也使垃圾能够被高效处理,有机物被转化为沼气,用于多样化的应用,而非有机垃圾则通过焚烧产生电力。这种双重路径不仅提高了能源回收效率,还通过最大化资源利用与最小化废弃物,支持了循环经济的核心原则。虽然在现有可持续性标准下,将附加材料与资源整合(如维持屋顶公园)可能面临一定挑战,但BAM设计团队的愿景是将该项目定位为一种过渡性的“原型”。它是一种实验性探索,旨在将工业设施重新整合进城市核心区,为未来更绿色的技术发展奠定基础,并助力上海实现 2060 年碳中和的长期目标。


将安全且清洁的垃圾处理基础设施引入城市核心区,是推动废弃物管理范式转变的关键。这需要重塑公众认知,以突破 “邻避效应” 所带来的社会阻力。最终目标是迈向真正的循环经济——在这一未来中,垃圾焚烧发电技术本身也将逐步退出历史舞台,而建筑则转化为纯粹的公共城市空间。从这一角度看,宝山项目不仅是一座建筑,更是一座将垃圾转化为能源、并重塑社会对垃圾认知的城市地标。


项目图纸






项目信息:
项目名称:宝山垃圾焚烧发电中心
项目地点:上海
项目面积:
规划面积:355,000 平方米
建筑面积:128,000 平方米
景观面积:110,000 平方米
设计单位:BAM百安木 (建筑、景观、总体规划);ARUP (结构与消防顾问);Hyder (幕墙顾问);五洲 (结构及施工图单位)
设计主创:Daniel Gass, Jake Walker
设计团队:关景文,李宸曦,季晓丹,郝雪,王子晛,张婧妍,梁文源,谈俊等
业主单位:宝金刚
摄影版权:Derryck Menere
========================================================================================================================================

上海Bar Vena / 即时设计研究所 [20P]

引言
“通过仪式”是指一种处境向另一种处境的过渡,呈现为三重序列:分离、过渡与聚合。个体脱离原有位置,进入两个世界之间的阈限空间,在那里身份被悬置、时间被凝固,最后以新的状态回归社会。
Arnold van Gennep《通过仪式》

△全貌
场地
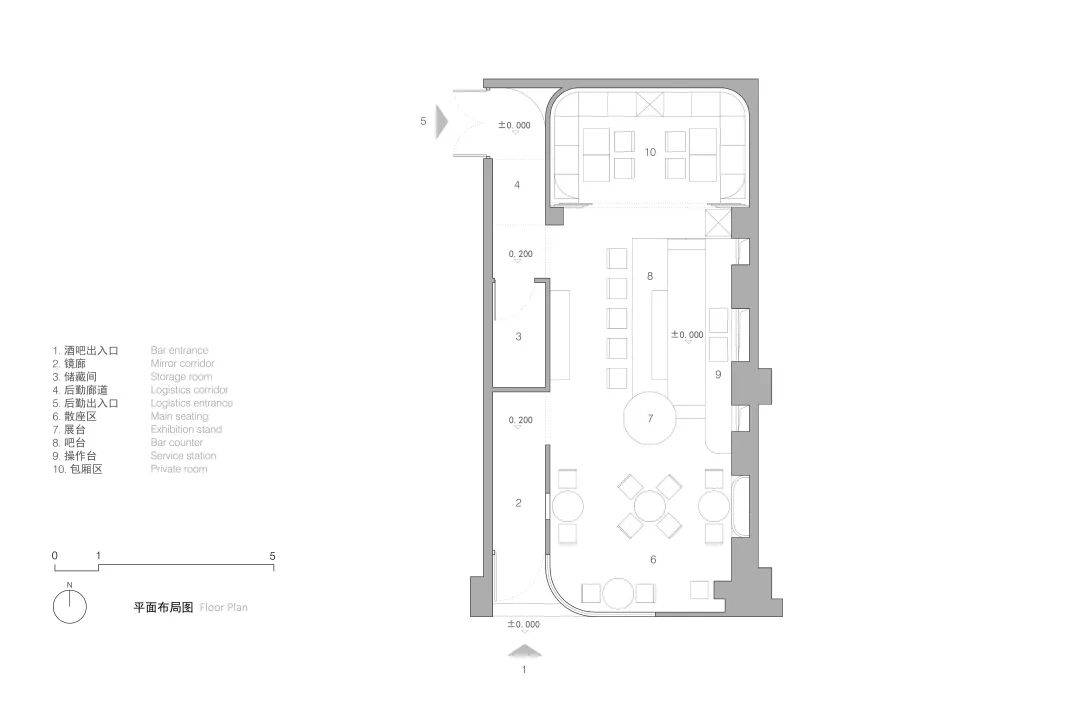
项目位于上海市永源路街区的地下一层,初见现场,一处70平米的空间,却有着诸多制约条件。店铺位于狭长通道内侧,无临街展示界面,无自然采光与景观,且紧临园区卫生间。
面对困境,我们明确了隔离街道且向内探索的设计思路,后现代建筑追求 “事件”而非“物体”,我们意图创造一个让人体验身份流动性的文化装置。
布局
我们将通过性空间凝练为一进一出两个廊道,一侧为主入口,另一侧连接后场,之间设置镜面材质的储物间,这样处理最大程度的保证了经营空间的完整性,整体布局呈现多条轴向对称,中间为操作台和吧台,外侧为散台区,内侧为可开合的包厢。

△空间布局分析(动图)© 即时设计研究所
空间内置了新的框架结构,强化区域划分,并将地面抬高200mm,在营造入口仪式感的同时解决吧台与操作台的高差问题。

△框架与高差
自此,我们试图以空间为载体,呈现关于“通过仪式”的三个阶段。

△探索与进入
分离仪式
店铺的入口是一个端头为镜面的廊道,创造了一个向内延伸的虚拟空间。它既不是"外部街道",也不是"内部店铺",它是一个过渡的通道,让顾客的身体在镜像中复制——真实的自我与镜中的虚像并存。顾客在走进这个廊道时,其日常的身份被暂时搁置,开始准备接受作为体验者的新身份。

△入口条窗

△镜廊

△内外并置
过渡仪式
穿过廊道,进入店铺内部,顾客就进入了纯粹的阈限空间,这是仪式的核心阶段,个体处于身份悬置、规范模糊、充满可能性的“之间”状态。这里是多个场景的集合地,每一个设计元素都在强化这种“之间”感。

△穿过廊道

△进入场景
顾客在壁炉、假窗、圆桌、绿椅构成的“之间”地带徘徊,身份处于模糊状态。
这个阶段是“反结构”的——日常的社会等级、行为规范被暂时打破,人们进入一种“交融”状态。顾客在此阶段“什么都不是”,也因此“什么都可以是”——他们的身份是开放的、流动的、正在生成的、与场景相对应的。

△条窗与“观察”

△框架与“庇护”

△壁炉与“家”

△圆桌与“宴会”

△假窗与“猜想”

△长桌与“剧场”

△便捷的服务动线

△可开合的包厢

△绿椅与“停靠”
聚合仪式
当顾客穿过另一个廊道回到街道时,他们完成了整个循环。
他们已不是进入时的那个“旧我”,他们带着空间体验的痕迹,可能是放松的心情、美好的记忆、或对某个场景的记忆,重新融入日常生活。
聚合并不意味着阈限体验的消失,而是将其内化为个人经验的一部分,顾客未来可能会因为这次体验而再次到访,或者向他人讲述这个空间——这都是仪式效果的延续。

△出口廊道
愿景
《通过仪式》中指出,人的一生由无数过渡构成,每一次转换都需要“分离-过渡-聚合”的仪式承载,Bar Vena的空间正是对这一理论的回响。
在现代生活的夹缝中,酒吧是一种仪式性的缓冲地带:让人们在理性化的日常之外,获得短暂卸下社会角色的空隙,这里不只为饮酒而设,更为都市人提供一个可以重新触碰自我的过渡之所。
△现场视频© 即时设计研究所

△平面布局图© 即时设计研究所
完整项目信息
项目名称:Bar Vena
项目功能:葡萄酒&鸡尾酒吧
项目地点:上海市静安区永源路街区
建筑面积:70㎡
竣工时间:2026.1
业主方: Vicky & Bob
设计单位:即时设计研究所(IM Design)
主持建筑师:周小富
设计团队:周小富、傅帅、李帅、李敏
施工单位:杭州荣升装饰工程有限公司
材料 :木、不锈钢、艺术涂料、洞石、皮艺等
摄影:刘国威
1条评分金币+35
xgch 金币 +35 辛苦了,感谢您无私奉献的精神! 昨天 22:24
山庄提示: 道行不够,道券不够?---☆点此充值☆
 
在线jjybzxw

UID: 551814


发帖
236186
金币
813489
道行
2006
原创
2459
奖券
3500
斑龄
44
道券
1548
获奖
0
座驾
设备
摄影级
在线时间: 50313(小时)
注册时间: 2008-10-01
最后登录: 2026-03-24
只看该作者 沙发  发表于: 昨天 09:14
上海两大特色项目:宝山垃圾焚烧发电中心与Bar Vena的多元魅力
一、宝山垃圾焚烧发电中心:可持续与创新的城市地标
1. 项目概况与战略意义
上海新落成的宝山垃圾焚烧发电中心是可持续废弃物处理设施领域的重大突破。该项目由BAM百安木设计,原址为燃煤高炉,如今在上海碳减排战略中扮演关键角色。通过取代旧有工业设施并将垃圾从填埋场转移,每年可减少超300万吨碳排放,既探索了循环经济,又将垃圾处理基础设施转变为可持续的城市地标。
2. 综合处理与高效设计
这座12.8万平方米的综合体包含焚烧发电装置和厌氧消化系统。四线焚烧炉日处理能力达3000吨,厌氧消化单元每天处理超8000吨湿垃圾,实现了垃圾处理方式的多元化与高效化。
BAM设计团队摒弃“装饰棚屋”模式,采用伪装与融合策略。建筑与景观结合,叠加“垃圾博物馆”和休闲设施等公共功能,将单一工业设施塑造为教育科普目的地和新型城市地标。
3. 建筑与景观的融合创新
设计视野延伸至整个场地,建筑体量如“山体”,立面模拟地质层理。屋顶设大型开口满足消防需求,使建筑具有通透性。近距离体验时像“外壳”,远处望去呈山岳般整体形象,通过开口与穿孔弱化体量感,融入场地与景观。
屋顶的10公顷公共公园强化了建筑与景观的融合,为市民提供休闲、教育与互动的绿色空间,同时遮蔽下方工业功能,模糊了建筑与景观的边界,形成复合形态。
4. 游客体验与教育功能
游客入口广场的图案感结构形成“微型城市”,容纳展览和休闲空间,引导参观者进入“垃圾博物馆”,开启从自然历史到垃圾能源化的沉浸式体验之旅。
“垃圾博物馆”通过主题化空间让学生与公众了解“垃圾的故事”,激发人们反思自身在废弃物挑战中的角色与责任。“垃圾焚烧发电体验馆”让参观者近距离了解垃圾处理关键环节,涡轮机房的4D影院体验生动呈现设施运行机制。工厂参观最后一站的绿色屋顶公园让参观者再次窥见下方设施。
5. 创新整合与未来愿景
项目整合垃圾焚烧发电和厌氧消化设施,实现垃圾高效处理。有机物转化为沼气,非有机垃圾焚烧产生电力,提高能源回收效率,支持循环经济原则。
虽然整合附加材料与资源面临挑战,但BAM设计团队将其定位为过渡性“原型”,为未来更绿色技术发展奠定基础,助力上海实现2060年碳中和目标。
将安全清洁的垃圾处理基础设施引入城市核心区,推动废弃物管理范式转变,重塑公众认知,突破“邻避效应”,迈向真正的循环经济,使建筑转化为纯粹的公共城市空间。
二、Bar Vena:通过仪式下的都市心灵栖息地
1. 项目背景与设计理念
Bar Vena位于上海市永源路街区地下一层,70平米的空间面临诸多制约条件,如无临街展示界面、无自然采光与景观、紧临园区卫生间等。设计团队明确隔离街道且向内探索的思路,受后现代建筑追求“事件”的启发,意图创造让人体验身份流动性的文化装置,以空间呈现“通过仪式”的三个阶段。
2. 空间布局与功能分区
将通过性空间凝练为一进一出两个廊道,一侧为主入口,另一侧连接后场,中间设置镜面材质储物间,保证经营空间完整性。整体布局多条轴向对称,中间为操作台和吧台,外侧为散台区,内侧为可开合包厢。
空间内置新框架结构强化区域划分,地面抬高200mm营造入口仪式感并解决高差问题。
3. 通过仪式的空间呈现
分离仪式:店铺入口的端头为镜面廊道,创造向内延伸的虚拟空间,是“外部街道”与“内部店铺”的过渡通道。顾客走进时,日常身份被暂时搁置,准备接受新身份,真实自我与镜中虚像并存。
过渡仪式:穿过廊道进入店铺内部,顾客进入纯粹的阈限空间,处于身份悬置、规范模糊的“之间”状态。壁炉、假窗、圆桌等元素构成的场景集合地,打破日常社会等级和行为规范,使顾客身份开放、流动、正在生成。
聚合仪式:顾客穿过另一个廊道回到街道,完成循环。他们带着空间体验痕迹重新融入日常生活,聚合将阈限体验内化为个人经验,可能促使再次到访或向他人讲述。
4. 项目愿景与社会意义
Bar Vena的空间是对《通过仪式》理论的回响,在现代生活夹缝中,酒吧成为仪式性的缓冲地带。它为都市人提供短暂卸下社会角色的空隙,不仅是饮酒场所,更是重新触碰自我的过渡之所。
三、总结与展望
宝山垃圾焚烧发电中心和Bar Vena虽然功能和性质截然不同,但都展现了上海在建筑设计和空间营造方面的创新与多元。宝山项目以可持续和环保为核心,通过创新的设计理念和技术手段,为垃圾处理行业树立了新的标杆,同时也为城市发展提供了新的思路和方向。Bar Vena则关注都市人的精神需求,通过独特的空间设计营造出具有仪式感的体验,为人们在繁忙的都市生活中提供了一处心灵的栖息地。这两个项目共同体现了上海在城市建设和文化发展方面的积极探索和卓越成就,也为未来的建筑设计和空间营造提供了有益的借鉴和启示。
1条评分金币+6
xgch 金币 +6 回复认真,加分鼓励 昨天 22:24
如何不发帖就快速得到金币道行
 
快速回复
限120 字节
认真回复加分,灌水扣分~
 
上一个 下一个