查看完整版本: [-- 上海现代汽车服务产业集聚区尚鸿商务中心 / 致正建筑工作室[48P] --]

武当休闲山庄 -> 无奇不有 -> 上海现代汽车服务产业集聚区尚鸿商务中心 / 致正建筑工作室[48P] [打印本页] 登录 -> 注册 -> 回复主题 -> 发表主题

jjybzxw 2026-03-16 10:14


东侧立面鸟瞰
项目背景
长风生态商务区位于上海市普陀区南部内环线和中环线之间的苏州河北岸,其前身是北新泾工业区,是上海老工业区成功转型的典范,也是上海市首批重点推进的现代服务业集聚区之一,初步形成了开放服务型、总部集聚型、人文生态型的区域特征。上汽集团作为中国最大的汽车工业企业,正处于向全球布局、跨国经营、具有国际竞争力和品牌影响力的世界著名汽车公司的转型发展过程中。位于长风生态商务区的尚鸿商务中心项目将以汽车消费和汽车品牌文化为核心,围绕上汽自身需求,致力于塑造现代汽车服务企业的总部经济集聚地,现代汽车服务产业新技术、新知识和领军人才集聚高地,以及汽车服务产业新业务示范和体验的领先基地。本项目突出节能、绿色、环保、智能的设计理念,是上汽集团第一个绿色建筑三星和LEED金双认证项目。

东北侧鸟瞰

东南侧街景
场地概况
项目基地位于丹巴路以东,云岭东路以北,东邻华师大四附中,北靠庆隆长风住宅项目沁和园,是长风生态商务区的西南门户节点。基地前身是1958年迁址于此的华丰钢铁厂,1965年该厂由上海市冶金局划归上海市机电一局农机公司(上汽集团前身)正式进军汽车行业。1992年华丰厂与上海压铸厂合并成立上海有色铸造总长,2001年上汽集团在华丰厂基础上合资成立上海皮尔博格有色零部件有限公司,并于2010年告别云岭东路厂区搬迁至嘉定,原有厂区经城市更新规划调整确定为商务、商业、文化混合用地。基地周边公共交通便利,教育、科研、文教、医疗及商业设施都较为充足。场地绿化景观资源丰富,北、东、南三面都被30-50米宽的绿带环绕,西侧隔路邻近城市公园。

西南侧鸟瞰

L形布置四栋塔楼
总体布局
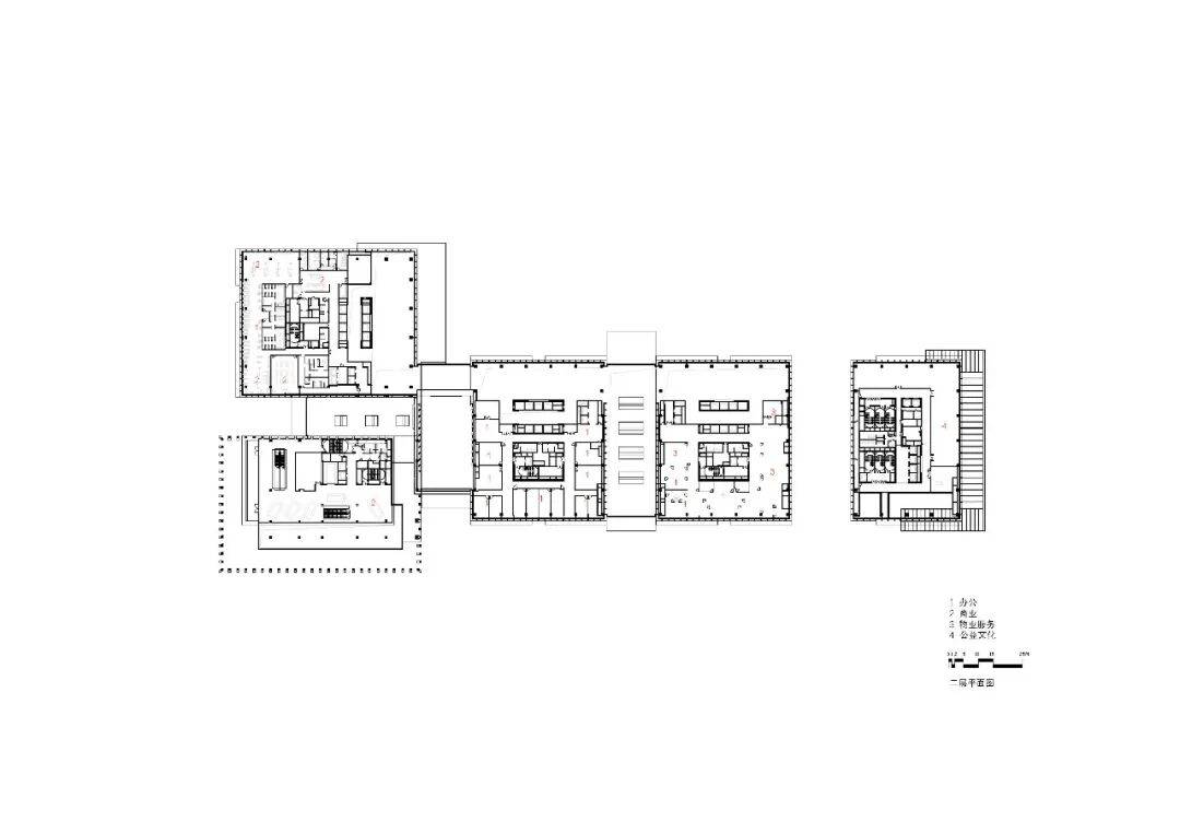
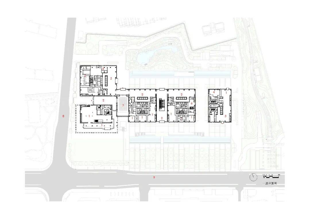
为了凸显上汽集团汽车服务业务的示范性、体验性和品牌性,我们在场地西南角临十字路口公众可达性最好的位置布置了一栋4层高方形体量的上汽品牌中心,并以此为关节点沿南侧和西侧道路呈L形布置四栋56米高的塔楼。这样的布局让四栋塔楼尽量远离北侧住宅区,与其之间留出大面积的共享花园空间,在解决日照影响的同时,保障了各自的私密要求与景观视野。品牌中心(A4楼)北侧的A1楼、以及东侧的A2、A3楼这三栋是商务办公主楼,它们通过相互之间的两层通高连接体在底部联成一体。底层除门厅外布置配套会议中心、文创商业,二层布置健身中心、后勤及物业部门。最东侧的B楼相对独立、作为还建地方政府的公益文化设施。建筑群沿云岭东路自西向东260米一气呵成展开,衬着50 米宽的城市绿带,向城市展示了一个兼具公共性和地标性的汽车文化界面。

南侧街景(冬日)

A2A3贯穿南北的共享大堂

A2大堂

共享大堂看向A2大堂
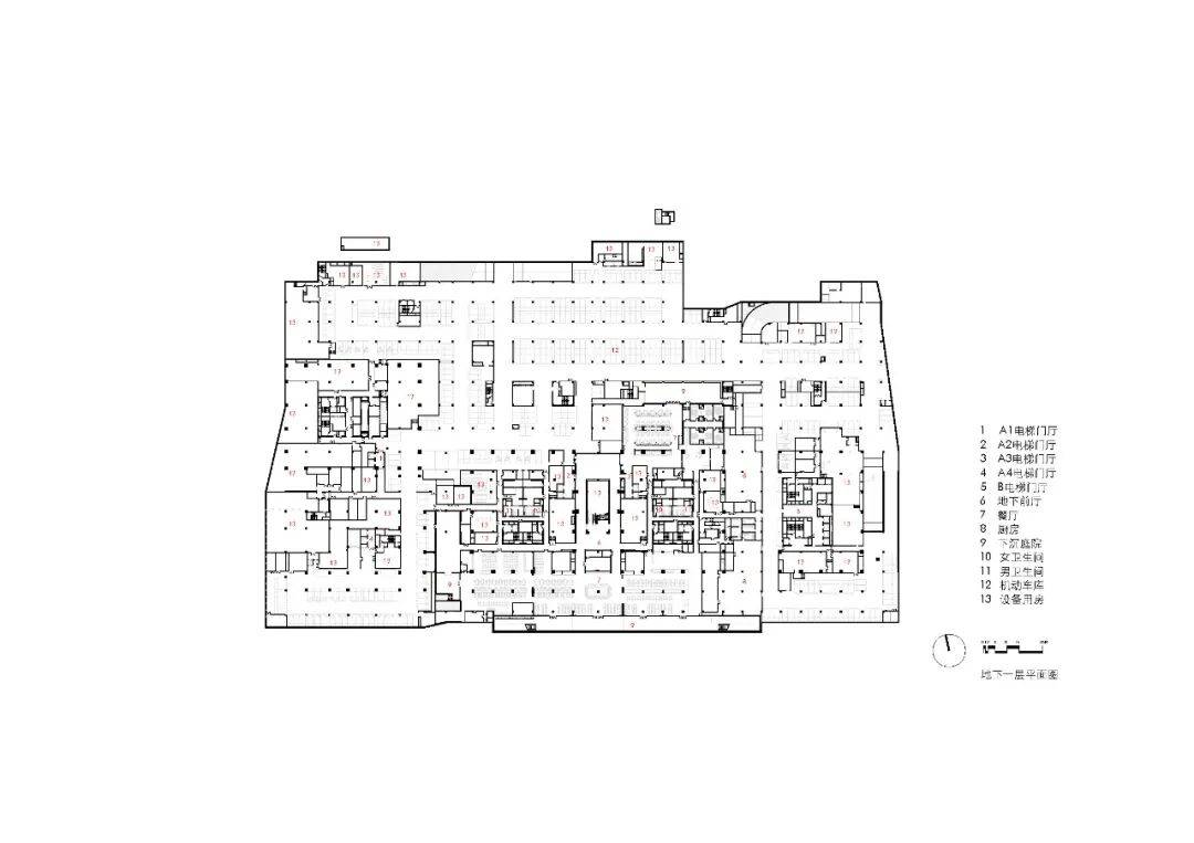
四栋塔楼都设置场地内外两侧双入口,面对内侧花园临内部车道是车行下客入口,面对外侧街道是人行入口。其中A1是朝东的独立专用车行入口,A2、A3合用一个朝北的车行入口,这两个入口内是贯通这三栋楼、总长195米的两层通高公共门厅,内部分为五段,其中三段是三栋塔楼电梯厅外对应的前厅,两段是三栋塔楼间的连接空间。A1、A2间的连接体向西向南延伸,同时连接了A4品牌中心,其中向西延伸部分成为A1面向丹巴路的人行入口,向南延伸部分是夹在A2和A4之间的400座会议厅。A2、A3间的连接体向南延展直至面向云岭东路的人行入口,成为贯穿南北、带有北向高侧天窗的高敞大厅,并有扶梯通向地下一层员工餐厅。

A1大堂通往A2A3公共门厅

A2A3共享大厅

A1大堂
立面设计

A4栋西南侧内部

A1栋东侧入口

局部

细部
品牌中心是整个项目的立面处理中最特殊的部分,我们用一个上下通高的密集石材柱廊构架形成品牌中心南、西两边面对城市的开放界面,既调节了它与项目整体的比例及尺度关系,又凸显了其作为项目整体空间关节点的应有形象。柱廊内是分层错叠咬合穿插的盒子体量,形成丰富的退台与悬挑空间。这些盒体分为由弧形铜色穿孔铝板单元包裹的半透明双层幕墙盒子和透明的单层玻璃幕墙盒子两种类型,并兼容了内部两个上下错位的双层通高空间。

地下一层前厅

电梯厅
景观设计
景观设计充分融合了生态可持续和城市共享的理念,建筑组群和南、北、东三面的绿化带、花园和开放空间形成有机的整体,创造建筑、城市与环境的和谐共生。建筑组群南北两个长边的硬质铺装消防场地外侧都设置了向内跌落的线形跌水景观,既作为建筑各主要入口前区的对景屏障,又作为与外侧绿化景观区域的过度。南侧跌水与消防场地间设置通长线形下称庭院为地下一层的员工餐厅提供自然采光与通风,并让跌水一直延续到下沉花园底部水池。

下沉庭院

西侧街景
南区跌水外侧绿化带的主体是带有稀树的生态草原,而在品牌中心南侧则是适合举行各种活动的大草坪。生态草原区由本地耐寒植被组成,包括榉树、银杏、柳枝稷、千鸟花、金鸡菊、羽毛草等,具备低维护需求,能有效减少水资源的消耗,并提供栖息地支持本地生物多样性。

南侧街景

西南侧街景
北区跌水外侧的花园是以本地树种生态混合林和湿地为主的休憩漫游景观,错落有致地种植了栾树、朴树、榉树、白玉兰、枫树、樱花、海棠、桂花、杜鹃、鸢尾等。大树撑起绿荫,注重四季花与叶的色相变化;灌木既丰富林层结构,也与林间湿地一起为野生动物提供栖息之所和食物来源。

A1栋北侧
生态草原,生态混合林和湿地,是不同的生态景观类型,但它们都对丰富城市中的生物多样性、调节气候、涵养水源等有非常积极的作用。南北两区的景观相互依存,共同营造丰富多样、充满生机且优美动人的生态系统,也体现了企业对环境保护和可持续发展的承诺和永续形象。

北侧街景
北侧花园内跌水结构下部空间及园内草坪设置了开放式会议区、休闲放松区和运动场地等的多样设施,不仅服务于园区内部,也与周边社区及城市保持开放共享,这增强了企业与城市的互动。

A4栋西南侧

A4栋东侧

A4栋南侧
室内设计
室内设计立足展现品牌形象,融合了当代工艺美学,以及功能性与艺术性的高度平衡。底层门厅作为室内最重要的空间,延续外部建筑用材至室内一体成型,展现简约大器的整体特质,不仅体现接待区的氛围,并通过对于上汽品牌元素的融合兼容了品牌展示的需要。室内注重多功能性和弹性使用,无论是访客、员工还是举办活动,都能适时依需求选择空间。会议室设计灵活多变,从小型会议到大型活动,可以根据所需进行灵活配置。同时,休息区也兼顾了舒适性和实用性,在工作之余可以尽情放松。结合外立面的大面积水平窗带设计,利用光线与室内植物改善大进深室内办公空间使用体验,营造和谐且舒适的工作环境。材料与细节的设计展现上汽集团对品质的追求和对工艺的关注,也充分考虑环保和可持续性,符合现代企业的社会责任。

A1A2共享大厅及报告厅

A4文化中心大堂
项目图纸

大区位图

小区位图

功能构成

总平

一层平面图

二层平面图

标准层平面图

屋顶层平面图

地下一层平面图

东立面图

北立面图

南立面图

西立面图

节点1模型图

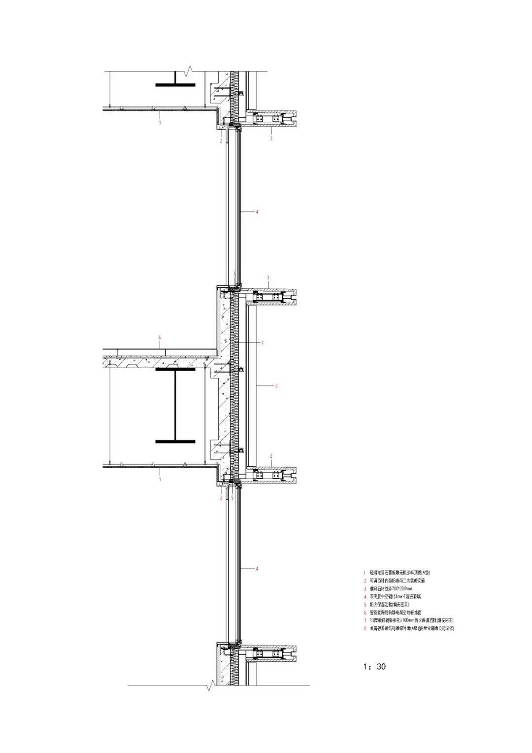
节点1详图

剖面1

剖面2

剖面3

轴测图
项目档案
项目名称:上海现代汽车服务产业集聚区尚鸿商务中心
建筑师:周 蔚 + 张 斌 / 致正建筑工作室
主持建筑师:张 斌
项目建筑师:李 沁,王惟捷(方案设计,扩初设计,施工图设计),王佳绮(景观设计)
设计团队:洪凯越、刘晓曼、廖雪城、梁一凡、章 迅、黄荣正、查东尼、韩 城、许昱歆、王智聪(实习)、刘晓宇(实习)、陆伊昀(实习)、郝 竞(实习)、娄刘梦(实习)、唐 韵(实习)、何陈忠(实习)、贺翠婷(实习)
室内顾问:一宇设计/ 王裕中、陈芃卉、刘中杨、王志豪、林育生
景观顾问:一宇设计/ 林逸峯、田益正、李建郡、黄婉贞、Alex de Dios、黄申飞、沈 雪、吴丽晶
幕墙顾问:上海熙玛工程顾问有限公司 / 蔡一栋、李 根、吴 顺
灯光顾问:上海同济建筑室内设计工程有限公司照明工程所 / 杨秀、龙婷、熊奇珉、何迪
室内施工图:上海同济建筑室内设计工程有限公司 / 张 栩、王文武、谈 凯、黄宏斌、陈璐洁
设计总包:同济大学建筑设计研究院(集团)有限公司
设计总负责:张 斌、曾 群
建筑:专业负责人:周 蔚、陈康诠、赖君恒
设计:李 沁、韩佩菁
结构:专业负责人:万月荣、洪文明
设计:钟毓仁、裴英博、李 旭、李振国、戴嘉琦、董耀旻、贾国庆、裴英博、耿柳珣
动力:专业负责人:刘 毅、邵华厦
设计:朱青青
暖通:专业负责人:刘 毅、邵华厦
设计:朱青青、周 懿、吴佳菲
给排水:专业负责人:王文清
设计:王文清
强电:专业负责人:武 攀
设计:武 攀、唐 平、王 瑛、胡祝格、梁富助
弱电:专业负责人:唐 平、徐畅慧
设计:唐平、徐畅慧
建设地点:上海市普陀区云岭东路680号,云岭东路、丹巴路交叉口东北侧
建设单位:上海尚鸿置业有限公司
施工总包:上海建工二建集团有限公司
专业分包:
幕墙:武汉凌云建筑装饰工程有限公司
江苏恒尚节能科技股份有限公司
上海玻机智能幕墙股份有限公司
室内:上海市建筑装饰工程集团有限公司
泛光:上海建工一建集团有限公司
空调:上海建工一建集团有限公司
消防:上海环创安装工程集团有限公司
弱电智能化:上海市安装工程集团有限公司
景观:上海建工园林有限公司
设计时间:2015.03 - 2022.09
建造时间:2016.12 - 2023.12
用地面积:45,802m2
占地面积:14,328 m2
建筑面积:191,724m2
结构形式:钢框架+钢筋混凝土核心筒结构(A1栋,A2栋,A3栋,B栋),钢框架结构(A4栋)
建筑层数: 地上11层、地下2层
主要用途:办公,文创商业,会议,展示,公益文化,员工餐厅
主要建筑用材:印度蓝花岗石,铜色氟碳喷涂铝型材、铝板及穿孔铝板,超白玻璃,旭格窗系统,拉丝不锈钢
主要室内用材:皮革面印度蓝花岗石(墙面)、光面印度蓝花岗石(地面)、氟碳喷涂铝板、 铝格栅 、铝板扩张网、木纹铝板、树脂板、硬包、木饰面、透光膜、编织地毯、防滑地砖
主要景观用材:花岗石、岩板、塑木、卵石、景石
摄影师:章鱼见筑

jjybzxw 2026-03-16 10:16
上海尚鸿商务中心:现代汽车服务产业的新地标
在上海市普陀区南部,长风生态商务区宛如一颗璀璨的明珠,坐落于内环线和中环线之间的苏州河北岸。这里曾是北新泾工业区,如今已成功转型为上海市首批重点推进的现代服务业集聚区之一,呈现出开放服务型、总部集聚型、人文生态型的独特区域特征。在这片充满活力与机遇的土地上,上海现代汽车服务产业集聚区尚鸿商务中心应运而生,成为上汽集团转型发展的重要载体,也为现代汽车服务产业树立了新的标杆。
项目背景:老工业区的华丽转身与上汽的战略布局
长风生态商务区的前身北新泾工业区,见证了上海工业发展的辉煌历程。随着时代的变迁,这里迎来了华丽的转身,成为现代服务业的集聚地。上汽集团作为中国最大的汽车工业企业,正处于向全球布局、跨国经营、具有国际竞争力和品牌影响力的世界著名汽车公司转型的关键时期。尚鸿商务中心项目以汽车消费和汽车品牌文化为核心,围绕上汽自身需求,致力于打造现代汽车服务企业的总部经济集聚地、新技术新知识领军人才集聚高地以及新业务示范和体验的领先基地。同时,该项目突出节能、绿色、环保、智能的设计理念,是上汽集团第一个获得绿色建筑三星和LEED金双认证的项目,彰显了上汽在可持续发展方面的坚定决心。
场地概况:历史与现代的交融,便利与生态的兼具
项目基地位于丹巴路以东,云岭东路以北,东邻华师大四附中,北靠庆隆长风住宅项目沁和园,是长风生态商务区的西南门户节点。这里承载着丰富的历史记忆,前身是1958年迁址于此的华丰钢铁厂,1965年划归上汽集团前身上海市机电一局农机公司,正式进军汽车行业。此后,经过多次合并与重组,2010年上汽集团告别云岭东路厂区搬迁至嘉定,原有厂区经城市更新规划调整确定为商务、商业、文化混合用地。

基地周边交通便利,教育、科研、文教、医疗及商业设施一应俱全。场地绿化景观资源丰富,北、东、南三面被30 - 50米宽的绿带环绕,西侧隔路邻近城市公园,为项目提供了良好的生态背景。
总体布局:功能与美学的完美结合
凸显示范性与品牌性
为了凸显上汽集团汽车服务业务的示范性、体验性和品牌性,设计团队在场地西南角临十字路口公众可达性最好的位置布置了一栋4层高方形体量的上汽品牌中心(A4楼),并以此为关节点沿南侧和西侧道路呈L形布置四栋56米高的塔楼。这种布局让四栋塔楼尽量远离北侧住宅区,留出大面积的共享花园空间,既解决了日照影响问题,又保障了各自的私密要求与景观视野。
建筑功能分布
品牌中心北侧的A1楼、以及东侧的A2、A3楼这三栋是商务办公主楼,它们通过相互之间的两层通高连接体在底部联成一体。底层除门厅外布置配套会议中心、文创商业,二层布置健身中心、后勤及物业部门。最东侧的B楼相对独立,作为还建地方政府的公益文化设施。建筑群沿云岭东路自西向东260米一气呵成展开,衬着50米宽的城市绿带,向城市展示了一个兼具公共性和地标性的汽车文化界面。
便捷的交通流线
四栋塔楼都设置场地内外两侧双入口,面对内侧花园临内部车道是车行下客入口,面对外侧街道是人行入口。其中A1是朝东的独立专用车行入口,A2、A3合用一个朝北的车行入口,这两个入口内是贯通这三栋楼、总长195米的两层通高公共门厅。A1、A2间的连接体向西向南延伸,同时连接了A4品牌中心,其中向西延伸部分成为A1面向丹巴路的人行入口,向南延伸部分是夹在A2和A4之间的400座会议厅。A2、A3间的连接体向南延展直至面向云岭东路的人行入口,成为贯穿南北、带有北向高侧天窗的高敞大厅,并有扶梯通向地下一层员工餐厅。
立面设计:独特风格彰显品牌魅力
品牌中心是整个项目立面处理中最特殊的部分。设计团队用一个上下通高的密集石材柱廊构架形成品牌中心南、西两边面对城市的开放界面,既调节了它与项目整体的比例及尺度关系,又凸显了其作为项目整体空间关节点的应有形象。柱廊内是分层错叠咬合穿插的盒子体量,形成丰富的退台与悬挑空间。这些盒体分为由弧形铜色穿孔铝板单元包裹的半透明双层幕墙盒子和透明的单层玻璃幕墙盒子两种类型,并兼容了内部两个上下错位的双层通高空间,展现出独特的艺术美感和科技感。
景观设计:生态共享,营造和谐共生环境
融合生态可持续与城市共享理念
景观设计充分融合了生态可持续和城市共享的理念,建筑组群和南、北、东三面的绿化带、花园和开放空间形成有机的整体,创造建筑、城市与环境的和谐共生。建筑组群南北两个长边的硬质铺装消防场地外侧都设置了向内跌落的线形跌水景观,既作为建筑各主要入口前区的对景屏障,又作为与外侧绿化景观区域的过渡。
丰富多样的生态景观类型
南区跌水外侧绿化带的主体是带有稀树的生态草原,由本地耐寒植被组成,包括榉树、银杏、柳枝稷、千鸟花、金鸡菊、羽毛草等,具备低维护需求,能有效减少水资源的消耗,并提供栖息地支持本地生物多样性。品牌中心南侧则是适合举行各种活动的大草坪。北区跌水外侧的花园是以本地树种生态混合林和湿地为主的休憩漫游景观,错落有致地种植了栾树、朴树、榉树、白玉兰、枫树、樱花、海棠、桂花、杜鹃、鸢尾等,注重四季花与叶的色相变化,为野生动物提供栖息之所和食物来源。
开放共享的设施设置
北侧花园内跌水结构下部空间及园内草坪设置了开放式会议区、休闲放松区和运动场地等多样设施,不仅服务于园区内部,也与周边社区及城市保持开放共享,增强了企业与城市的互动,体现了企业的社会责任感。
室内设计:展现品牌形象,融合功能与艺术
延续建筑风格,体现品牌特质
室内设计立足展现上汽品牌形象,融合了当代工艺美学,以及功能性与艺术性的高度平衡。底层门厅作为室内最重要的空间,延续外部建筑用材至室内一体成型,展现简约大气的整体特质,不仅体现接待区的氛围,还通过融合上汽品牌元素兼容了品牌展示的需要。
注重多功能性与弹性使用
室内注重多功能性和弹性使用,无论是访客、员工还是举办活动,都能适时依需求选择空间。会议室设计灵活多变,从小型会议到大型活动,可以根据所需进行灵活配置。休息区也兼顾了舒适性和实用性,在工作之余可以尽情放松。
优化空间使用体验
结合外立面的大面积水平窗带设计,利用光线与室内植物改善大进深室内办公空间使用体验,营造和谐且舒适的工作环境。材料与细节的设计展现上汽集团对品质的追求和对工艺的关注,也充分考虑环保和可持续性,符合现代企业的社会责任。
项目档案:汇聚精英,打造精品
强大的设计团队
上海现代汽车服务产业集聚区尚鸿商务中心由周蔚 + 张斌 / 致正建筑工作室主持设计,主持建筑师为张斌。项目建筑师包括李沁、王惟捷等,景观设计由王佳绮负责。设计团队汇聚了众多专业人才,如洪凯越、刘晓曼、廖雪城等,同时还有室内顾问、景观顾问、幕墙顾问、灯光顾问等多领域专家共同参与,确保了项目的高质量设计。
严谨的建设流程
项目设计时间从2015年3月至2022年9月,建造时间从2016年12月至2023年12月。建设地点位于上海市普陀区云岭东路680号,云岭东路、丹巴路交叉口东北侧。建设单位为上海尚鸿置业有限公司,施工总包为上海建工二建集团有限公司,还有众多专业分包单位参与建设,各单位紧密协作,共同打造这一精品项目。
详细的项目信息
项目用地面积45,802平方米,占地面积14,328平方米,建筑面积191,724平方米。结构形式采用钢框架 + 钢筋混凝土核心筒结构(A1栋,A2栋,A3栋,B栋)和钢框架结构(A4栋),建筑层数为地上11层、地下2层。主要用途包括办公、文创商业、会议、展示、公益文化、员工餐厅等。主要建筑用材有印度蓝花岗石、铜色氟碳喷涂铝型材、铝板及穿孔铝板、超白玻璃等,室内和景观用材也经过精心挑选,确保项目的品质和环保要求。

上海现代汽车服务产业集聚区尚鸿商务中心以其独特的设计理念、合理的总体布局、精美的立面与景观设计、实用的室内空间以及严谨的建设流程,成为现代汽车服务产业的标志性建筑。它不仅为上汽集团的发展提供了有力支持,也为长风生态商务区的建设增添了光彩,更为现代建筑设计与可持续发展提供了宝贵的借鉴经验。

姜谷粉丝 2026-03-16 10:31
上海现代汽车服务产业集聚区(尚鸿商务中心)由致正建筑工作室设计,是上汽集团在普陀区长风生态商务区打造的核心项目。该项目定位为创新转型展示平台,总建筑面积约19万平方米,涵盖三大功能板块:

核心设计特色
建筑群布局与功能

A楼综合体:由3栋11层高层塔楼(办公)与4层裙房(上汽品牌文化展示中心)组成,沿丹巴路与云岭东路展开。塔楼高度51.65米,裙房高度23.95米,通过连廊连接形成动态界面。
B楼公益文化中心:独立11层高层建筑(51.65米),毗邻云岭东路绿化带,强调公共性。
C楼配套:隐蔽的1层垃圾房(6米高),减少对主体干扰。
空间与文化融合

设计呼应长风工业区转型背景,以简洁的钢框架+混凝土核心筒结构塑造现代工业美学,同时通过幕墙玻璃的反射控制(如光反射分析技术)兼顾生态与城市协调性。
品牌展示中心位于交叉口显著位置,强化企业形象;公益文化楼靠近主入口,提升社区参与度。
景观与城市缝合

充分利用南侧与东侧公共绿化带,将建筑嵌入生态网络,成为长风商务区“老工业区转型典范”。地下车库与地面景观一体化设计,优化人流与车流动线。
社会与产业价值
转型标杆:作为上海市首批现代服务业集聚区,项目整合办公、商业、文化展示功能,容纳约3500人办公,推动汽车产业服务化升级。
地域激活:通过缝合丹巴路与云岭东路城市界面,重塑工业遗产空间,促进商务区活力再生。
项目已竣工投用,其设计体现了致正工作室“理性技术选择与创造性生活融合”的理念,成为上海产城融合的代表性实践。


查看完整版本: [-- 上海现代汽车服务产业集聚区尚鸿商务中心 / 致正建筑工作室[48P] --] [-- top --]


Powered by www.wdsz.net v8.7.1 Code ©2005-2018www.wdsz.net
Gzip enabled


沪ICP备:05041533号