查看完整版本: [-- 雪山下的亚丁博物馆、山谷餐厅与村落更新 / 中国建筑西南设计研究院//話梅北京合生汇 / AIM恺慕建筑设计[55P] --]

武当休闲山庄 -> 无奇不有 -> 雪山下的亚丁博物馆、山谷餐厅与村落更新 / 中国建筑西南设计研究院//話梅北京合生汇 / AIM恺慕建筑设计[55P] [打印本页] 登录 -> 注册 -> 回复主题 -> 发表主题

jjybzxw 2026-03-17 09:40
雪山下的亚丁博物馆、山谷餐厅与村落更新 / 中国建筑西南设计研究院[31P]


博物馆雪景(摄影:尹庆华)
亚丁——朝向神山的向阳之地
稻城亚丁位于“蓝色星球的最后一片净土”香格里拉境内。这里是西方著名探险小说《消失的地平线》描述的蓝月山谷的原型地。作为亚丁景区内唯一的自然村落,亚丁村坐落于海拔4000米的高山平坝之上,亚丁意思是“向阳之地”。这里曾经因与世隔绝而保留着藏文化的原真。近年来这里渐为人知,外来游客与日俱增,因缺少系统的保护规划,村落风貌遭到破坏,藏式民居被快速建造的低端民宿取代,加之基础设施薄弱,业态单一,已经严重滞后于景区发展。

亚丁村——向阳之地(摄影:存在建筑)
亚丁村的保护与更新工作始于2022年底,设计从实地调研走访开始,收集原始资料,了解原住民需求,针对生态环境、文旅业态,建筑风貌、基础设施四个方面,制定了保护修复与更新策略。由政府牵头,集合文旅、住建、农业、生态等多方专家成立工作组,汇同村民和商户代表,形成全过程多方共同参与的工作模式。2023年3月现场施工启动,包括穿越村庄的公路改道、护坡生态修复,水渠环境整治,既有建筑改造、地下管网与屋面光伏等内容。设计与施工方配合,充分听取村民意见,制定“微创式”施工方案。随着建设的持续推进,被雪山环抱的亚丁村,以新的形象呈现在世人面前。

亚丁风光(摄影:邝宏伟)

雪山与书店(摄影:存在建筑)

博物馆(摄影:存在建筑)
海拔最高的香巴拉博物馆
稻城亚丁以雪山草甸自然景观闻名,作为景区的核心村落,除了自发的民宿和消防、医疗服务点,缺乏更多的内容。为了弥补景区人文展示的短板,增强游客吸引力,政府决定修建一座收藏和展示香巴拉藏文化的小型博物馆。

博物馆(摄影:存在建筑)
设计工作从策划与选地开始。亚丁村坐落于峡谷边上的缓坡台地上,面朝仙乃日、夏洛多吉两座神山——分别是藏传佛教中观音和金刚菩萨的化身。博物馆的位置首先要考虑与神山的关系。在现有青稞田和民宅之外,设计团队发现在村落南侧留有一小块空地,紧邻峡谷,面朝神山,视野非常理想。但这块空地地势较低,与村庄有10米高差,中间还隔着一条景区公路。这样特殊的条件限制启发了博物馆的流线与剖面设计。跨过景区公路的人行桥将人流由村内直接引入博物馆三层的观景平台,这里又称为“亚丁阳台”。阳台边缘下沉的通长台阶方便人们坐下来直面雪山,避免了护栏对于视线的遮挡。人们在屋顶打卡拍照,举办小型演出等活动,屋顶成为村落新的活力场所,也是进入博物馆前最佳的空间序篇。

博物馆(摄影:存在建筑)

博物馆公共大厅(摄影:存在建筑)
博物馆功能包括展览与书店,面积约3000平米,竖向共三层,建筑剖面是一个出挑的倒锥形态,用最小的占地上创造出最大的观景平台,向环境打开。人流动线也是自上而下,从“亚丁阳台”进入三层门厅与展厅,再下至二层展厅与书店参观,建筑的底层与陡坡堡坎结合在一起,作为设备机房和下部基础。参观结束后人们从二层出口离开,再沿着架设于峡谷陡坡上的观山步道继续游览。博物馆动线与村落步行游线串接在一起。自上而下的动线也充分考虑到游客在4000米海拔上的身体反应,避免向上爬楼是更为人性化的选择。博物馆室内还加装了弥散式供氧系统,进一步提升游客舒适度。

博物馆(摄影:存在建筑)

博物馆公共大厅(摄影:存在建筑)
博物馆的形态经过多个方案的比较,最后选择了顺应地形的弧线体量,以更好地融入高山峡谷的自然环境;并与亚丁村民居的矩形体量相区别,突显建筑的文化身份,表达藏文化中香巴拉(即香格里拉)梦想之地的浪漫想象。银白色的屋顶象征着山巅的终年积雪,由鱼鳞状的披叠金属板拼接而成。阳光在板面的反射,让人想起藏地寺庙的鎏金金顶,闪耀的屋顶成为高原的地标。

博物馆(摄影:存在建筑)

通透的玻璃幕墙(摄影:刘艺)
博物馆外墙就地取材,村里改造拆除的石块和木板被利用起来,以砌筑和钉挂的方式重新上墙,留住了物质的记忆,也留住了手工的痕迹。高原缺乏技术工人,墙体的施工不追求精准光滑,参差凹凸的石块与木板包容了施工的误差,形成阳光下生动的肌理,与高原粗犷原始的气质相吻合。

博物馆展厅(摄影:广东省集美设计工程有限公司)
有别于传统封闭模式,博物馆设计将雪山壮美的景观串联在参观流线中,建筑融入环境,模糊了内外空间的界限。从碎石板铺装的三层观景平台,步入博物馆门厅,一面连续的弧线玻璃墙将雪山全景纳入视野。为了实现最大的通透性,玻璃去掉了龙骨,上部设计了悬挂支撑的黑色钢件用于抵抗高原强风。与幕墙的轻巧形成反差,石砌外墙延续到室内,构成空间的基调。暗色的木装修反衬出户外阳光的明媚,营造出私密温暖的庇护感。顺着曲线楼梯下到二层的文创书店,这里有多种语言版本的描写香巴拉藏文化的书籍,靠窗的座位一览雪山与峡谷,点上一杯咖啡静坐,文字与美景的交融带给游客难忘的阅读体验。

蓝月山谷(摄影:尹庆华)
蓝月山谷餐厅
亚丁村南侧是陡峭的山谷,也是离雪山最近的地方,沿着山谷边缘设计了一条观山栈道,起点是博物馆,终点是一座游客餐厅。餐厅名字取自于小说《消失的地平线》中描述的隐匿在喜马拉雅山脉深处的蓝月山谷。
来到稻城亚丁的人都说“眼睛在天堂,身体在地狱”,餐厅提供的美食,是对游客身体最好的抚慰。建筑用地稍低于景区道路,因而采用了吊层式设计。上下层分别采用了两种结构体系,下部为混凝土结构,安排后勤房间,用以垫高地势,外墙用石块砌筑,封闭厚重。上部采用胶合木结构,色彩温暖,就餐区以落地玻璃墙围合,最大程度地纳入高原阳光和雪山景色,风景即是第一道佳肴。

蓝月山谷(摄影:刘艺)

蓝月山谷(摄影:奉婷)

蓝月山谷(摄影:刘艺)
为了减少12米单跨的木梁截面,特别设计了一种层叠梁架,用小截面的胶合木方纵横叠压,形成一个空间结构体系,光线弥漫在木方的间隙,进一步减弱了结构的视觉重量。屋盖的出檐以木方逐层出挑,与藏式传统门窗的梁头做法异曲同工,以构造回应藏地文脉。

蓝月山谷(摄影:存在建筑)
村落的有机更新
在近20年来的旅游发展中,亚丁村的尺度与风貌遭到破坏,以恢复地方传统为目标,我们对亚丁村现有建筑进行分区评估:村内62栋建筑分为4类,其中保护19栋、一般修复25栋、重点整改11栋、危房拆除7栋。保护与一般修复适用于传统藏房,仅对局部构件进行更新替换;重点整改则针对租赁利益驱使下建筑体量过大,成品门窗与砌块的外观粗陋的状况,以恢复稻城地区“黑门黑窗+石砌外墙”的黑藏房传统。设计团队选取了一栋民宅进行试点,拆除了危房结构进行原址复建,在保留原住民居住空间的情况下,增加了12间客房对外运营,以平衡建设资金,为村民自建提供示范引导。

亚丁村旧照(摄影:西南院)

亚丁村保护更新后(摄影:存在建筑)
通过政府出资,改善基础设施与环境整治,将村落中心闲置的空地改造为亚丁坝子,作为公共活动的中心,周边引入唐卡画廊、音乐餐吧、非遗手作、青稞酒坊等具有地方特色的业态,进一步带动村民与外来商家的投资意愿。后续高端民宿“松赞”、“般若”、“千秋雪”等品牌相继入驻,改变了以往低端的民宿业态,实现政府、村民、商家三方共建的可持续模式。

民宿公共空间(摄影:创视达)

民宿客房露台(摄影:成都天堂鸟视觉摄影有限公司)

民宿客房室内(摄影:成都天堂鸟视觉摄影有限公司)
除了经济发展的考量,规划设计充分尊重和保护亚丁村半农半牧的生产结构,延续祈福、织布、劈柴、煨桑、转经、锅庄等生活场景。曾经无序生长的亚丁村,重新恢复为美丽的藏乡,成为香格里拉旅游大环线上新的人文目的地。

试点民宅改造后(摄影:存在建筑)
项目图纸

保护修复及运营落位图(图源:西南院)

博物馆形态推演(图源:西南院)

叠合梁结构图(图源:西南院)
木结构柱构造(图源:西南院)
亚丁香巴拉文化博物馆及村庄剖面图(图源:西南院)
香巴拉文化博物馆北立面图(图源:西南院)

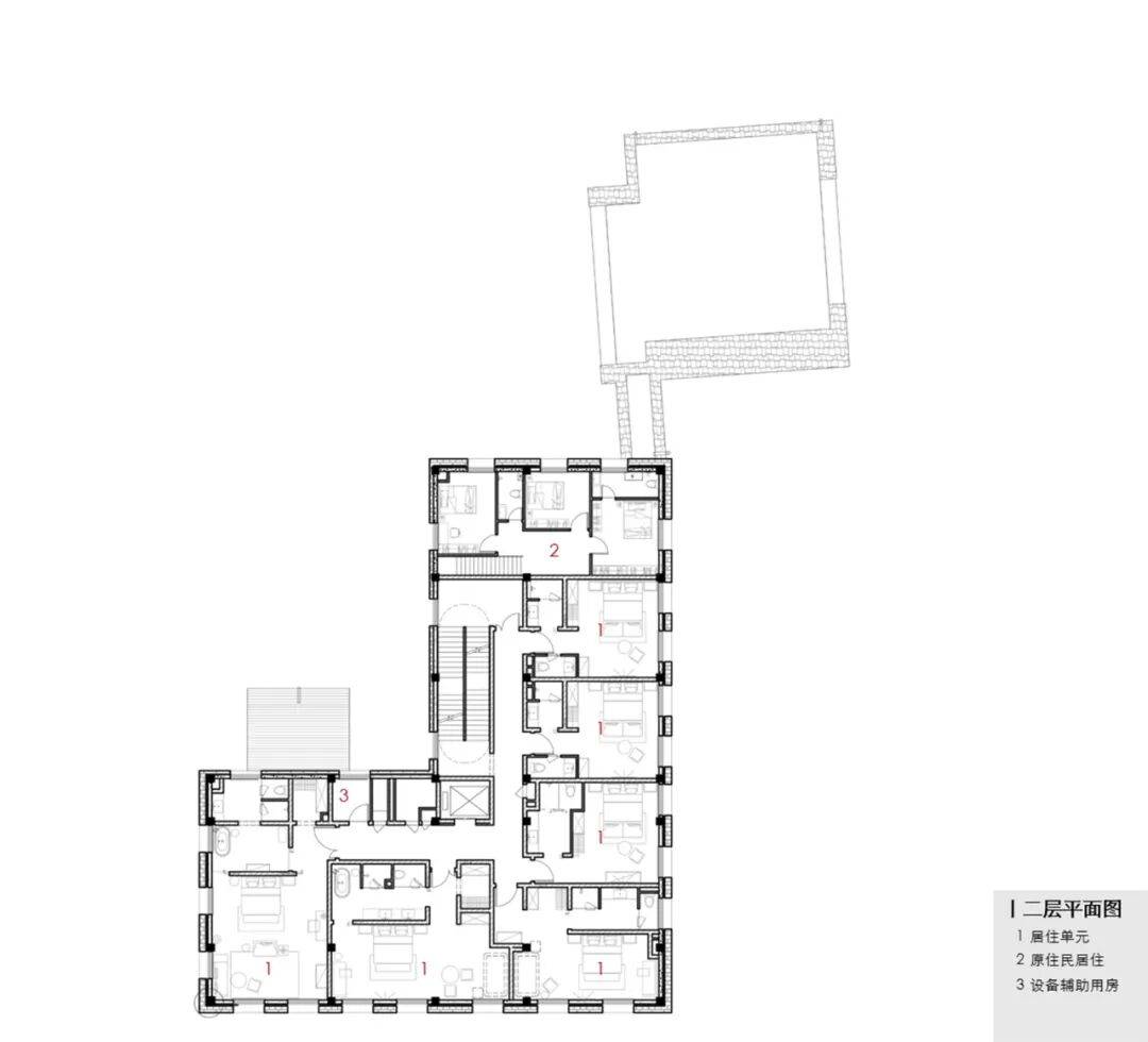
香巴拉文化博物馆二层平面图(图源:西南院)

香巴拉文化博物馆三层平面图(图源:西南院)

试点民宅改造后一层平面图(图源:西南院)

试点民宅改造后二层平面图(图源:西南院)

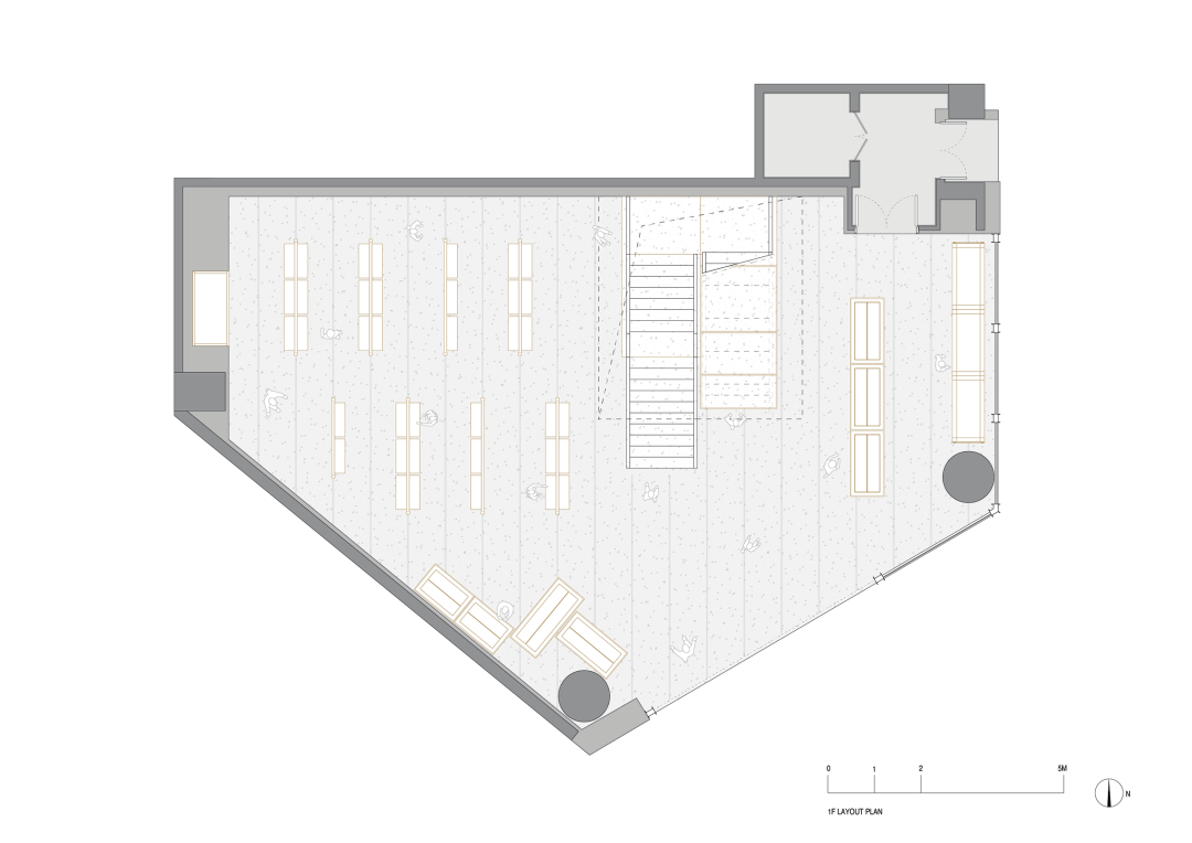
蓝月山谷餐厅一层平面图(图源:西南院)

蓝月山谷餐厅二层平面图(图源:西南院)
完整项目信息
项目名称:稻城县亚丁村保护恢复规划
项目地点:甘孜州稻城县亚丁村
设计时间:2022年11月——2023年3月
建成时间:2024年5月
用地面积:约700亩(含生态修复范围)
建筑面积:约1万平米(含新建与改建)
业主单位:稻城县资产投融资集团有限公司
设计单位:中国建筑西南设计研究院有限公司
室内设计单位:四川创视达建筑装饰设计有限公司
设计总负责人:刘艺
设计副总负责人:马俊 奉婷
建筑专业:梁庆华、吴彩菱、刘进才、黄萱萱、张志雄、张婧怡、姜朝旺、张月
结构专业:龙卫国、廖理安、周浩璋、陶磊、陈元龙、张毅、李苡松、许予东
给排水专业:蒋海波、郭礼宝、杨世忠、陈晓超、普孝钦、王铁竹、韩庆昌
暖通专业:熊小军、郭平、赵阳、杜高、赵欣怡
建筑电气专业:刘卫、丁新东、江龙、张龙乾、谭超
建筑智能化及泛光专业:张晓刚、栾小荷、尹霞
景观专业:陈宏宇、陈军、吴沁竺、崔胜菊、程懿昕、潘宇翔、杨洋、李欣薇、黄振华、
王官琪
建筑技术专业:窦枚、葛声乐
规划专业:邹莺、孔垂婧、崔方迪、秦文智、李佳泊
市政专业:赵刘伟、李琰、吕晓亮、卢洲
室内设计专业:张灿、张利、李文婷、周小辉、王良芬、唐俊、刘文静、杨颜、唐佳、魏艾徐茂雅、范晋丽
========================================================================================================================================

話梅北京合生汇 / AIM恺慕建筑设计[24P]


©Seth Powers
全新的HARMAY話梅北京合生汇旗舰店延续了这一探索与对话。项目以艺术体系中最具功能性的空间类型—“藏品仓储”为研究对象,并将其转译为一种最为普遍、也最具公共性的行为:购物。通过模糊艺术仓库与零售典藏空间之间的界线,设计提出一种新的可能性:产品的选择,本身可以是一种策展行为;个人需求,亦可转化为一种收藏实践。在货架上寻得一款产品,不再是单纯的消费行为,而是一种有意识的自我建构过程,围绕未来的身份与生活方式,逐一甄选所需之物。


被收藏,而非被消费;被归档,而非被展示;被体验,而非被售卖。多年来,AIM恺慕建筑设计与HARMAY話梅紧密合作,不断拓展零售空间的边界——从“商店”走向一种能够激发好奇、凝聚社群并促成文化交流的空间形态。HARMAY話梅作为先锋美妆零售商,以极具个性的仓储式美学与精挑细选的选品理念著称,将购物转化为一场探索之旅,也因此收获忠实的顾客群体。

©Seth Powers
店铺共设两层,以核心竖向动线串联空间,从视觉与动线层面打通一层与二层的连接。楼梯并未被塑造成象征性的空间节点,而是遵循仓储逻辑,以简洁的金属结构叠置于货运箱体之上,并将箱体自然嵌入台阶之中。动线、陈列与仓储体系在此融为一体,在自然引导顾客向上探索的同时,消解了传统零售空间的等级结构。

©Seth Powers

©HARMAY

©Seth Powers

©Seth Powers
可移动金属网仓储隔板、木质货运箱与顶层置物架,共同打造出灵活可变、常看常新的空间形态。工业风的设计体系被凝练简化,化作极简的空间框架,让产品成为空间焦点。不锈钢、玻璃、抛光混凝土与原木构成克制的材质基调,质朴却精致,实用却始终经过精心编排。


©Seth Powers
二层空间中,错落的长形陈列区、典藏式柜体,以及专为韩妆与面膜系列打造的专属区域,共同营造出极具未来感的典藏空间氛围,美妆产品在此不再是单纯的商品,而是被赋予价值的珍藏之物。嵌入式灯光设计提升了空间的通透度与层次感,让整个空间更具秩序感、韵律感与静谧感。

©Seth Powers

©Seth Powers
这座门店最终传递出一场微妙却深刻的文化转变:我们为安放艺术而打造的空间形态,亦能教会我们如何更好地构筑属于自己的生活。它如同一份宣言,诠释着博物馆仓储空间所秉持的秩序、用心与审慎选择的原则,本身即是一种艺术实践,更能为日常生活动增添质感与温度。

©Seth Powers



©Seth Powers
设计借鉴艺术藏品的管理方式与典藏逻辑,将购物这一日常行为,升华为一场塑造自我的艺术表达。顾客既是自己生活的典藏者,也是持续生成中的作品,在一次次选择中,完成自我的更新与精炼。








©HARMAY
业主:HARMAY話梅
项目地点:北京市朝阳区合生汇
建筑面积:一层:200平方米;二层:420平方米
建成时间:2026年1月
设计范围:室内设计

jjybzxw 2026-03-17 09:42
雪山下的亚丁博物馆、山谷餐厅与村落更新 / 中国建筑西南设计研究院
项目背景与挑战
稻城亚丁位于香格里拉境内,亚丁村作为景区内唯一的自然村落,坐落于海拔4000米的高山平坝上,因与世隔绝保留着藏文化原真。但近年来,游客增多且缺乏系统保护规划,导致村落风貌遭破坏,低端民宿取代藏式民居,基础设施薄弱,业态单一,严重滞后于景区发展。
亚丁村保护与更新策略
1. 多方参与模式:2022年底启动保护与更新工作,从实地调研走访开始,收集资料、了解原住民需求,针对生态环境、文旅业态、建筑风貌、基础设施制定策略。政府牵头,集合多方专家成立工作组,汇同村民和商户代表,形成全过程多方共同参与模式。2023年3月现场施工,包括公路改道、生态修复、环境整治、建筑改造、管网铺设与屋面光伏等内容,设计与施工方配合,制定“微创式”施工方案。
2. 村落建筑评估与整改:对村内62栋建筑分区评估,分为保护、一般修复、重点整改、危房拆除四类。保护与一般修复针对传统藏房,局部更新构件;重点整改恢复“黑门黑窗 + 石砌外墙”的黑藏房传统。选取一栋民宅试点,拆除危房原址复建,增加客房运营,为村民自建提供示范。
3. 基础设施与业态改善:政府出资改善基础设施与环境整治,改造村落中心闲置空地为亚丁坝子作为公共活动中心,引入地方特色业态,带动村民与商家投资意愿。高端民宿品牌相继入驻,改变低端民宿业态,实现政府、村民、商家三方共建的可持续模式。
4. 尊重生产结构与生活场景:规划设计尊重和保护亚丁村半农半牧的生产结构,延续祈福、织布等生活场景,使无序生长的亚丁村重新恢复为美丽的藏乡,成为香格里拉旅游大环线上新的人文目的地。
海拔最高的香巴拉博物馆
1. 选址考量:为弥补景区人文展示短板,增强游客吸引力,政府决定修建小型博物馆。亚丁村坐落于峡谷边缓坡台地,面朝两座神山。博物馆选址在村落南侧空地,紧邻峡谷、面朝神山,但地势低与村庄有10米高差且隔着景区公路,这启发了流线与剖面设计。
2. 流线与剖面设计:跨景区公路的人行桥将人流引入博物馆三层观景平台(“亚丁阳台”),阳台边缘下沉台阶方便观景。人流动线自上而下,从“亚丁阳台”进入三层门厅与展厅,再下至二层展厅与书店,底层作为设备机房和下部基础。参观结束后从二层出口离开,沿观山步道继续游览,动线与村落步行游线串接,且考虑游客在4000米海拔的身体反应,避免向上爬楼,室内还加装弥散式供氧系统。
3. 形态与材料设计:博物馆形态选择顺应地形的弧线体量,融入自然环境且与村民居矩形体量相区别,突显文化身份。银白色屋顶象征山巅积雪,由鱼鳞状披叠金属板拼接而成,阳光反射让人想起藏地寺庙鎏金金顶,成为高原地标。外墙就地取材,利用村里改造拆除的石块和木板,以砌筑和钉挂方式上墙,留住物质记忆和手工痕迹,参差凹凸的肌理与高原气质吻合。
4. 内外空间融合:博物馆设计将雪山景观串联在参观流线中,模糊内外空间界限。从三层观景平台步入门厅,弧线玻璃墙纳入雪山全景,玻璃去掉龙骨,上部设计悬挂支撑黑色钢件抵抗强风。石砌外墙延续到室内,暗色木装修反衬户外阳光,营造私密温暖庇护感。二层文创书店有多种语言版本藏文化书籍,靠窗座位可览雪山与峡谷,带来难忘阅读体验。
蓝月山谷餐厅
1. 位置与命名:餐厅位于亚丁村南侧陡峭山谷边缘,是离雪山最近的地方,沿着山谷边缘的观山栈道起点是博物馆,终点是餐厅。名字取自小说《消失的地平线》中描述的蓝月山谷。
2. 设计特点:建筑用地低于景区道路,采用吊层式设计,上下层分别采用混凝土和胶合木结构体系。下部混凝土结构安排后勤房间,垫高地势,外墙用石块砌筑,封闭厚重;上部胶合木结构色彩温暖,就餐区以落地玻璃墙围合,纳入高原阳光和雪山景色。
3. 结构创新:为减少12米单跨木梁截面,设计层叠梁架,用小截面胶合木方纵横叠压形成空间结构体系,光线弥漫在木方间隙,减弱结构视觉重量。屋盖出檐以木方逐层出挑,回应藏式传统门窗梁头做法,以构造回应藏地文脉。
話梅北京合生汇 / AIM恺慕建筑设计
项目理念与背景
HARMAY話梅北京合生汇旗舰店延续探索与对话,以艺术体系中“藏品仓储”为研究对象,转译为购物行为,模糊艺术仓库与零售典藏空间界线,提出产品选择是策展行为、个人需求是收藏实践的新可能性。AIM恺慕建筑设计与HARMAY話梅紧密合作,不断拓展零售空间边界,HARMAY話梅以仓储式美学与精挑细选选品理念著称,将购物转化为探索之旅,收获忠实顾客群体。
空间设计与布局
1. 动线设计:店铺共两层,以核心竖向动线串联空间,打通一层与二层视觉与动线连接。楼梯遵循仓储逻辑,以简洁金属结构叠置于货运箱体之上,箱体嵌入台阶,动线、陈列与仓储体系融为一体,引导顾客向上探索,消解传统零售空间等级结构。
2. 空间形态打造:可移动金属网仓储隔板、木质货运箱与顶层置物架打造出灵活可变的空间形态。工业风设计体系凝练简化,形成极简空间框架,突出产品。不锈钢、玻璃、抛光混凝土与原木构成克制材质基调,质朴精致且实用精心编排。
3. 二层空间氛围营造:二层空间中,错落长形陈列区、典藏式柜体和韩妆与面膜专属区域营造出极具未来感的典藏空间氛围,美妆产品被赋予珍藏之物价值。嵌入式灯光设计提升空间通透度与层次感,使空间更具秩序、韵律与静谧感。
文化意义与传达
门店传递出微妙却深刻的文化转变,为安放艺术打造的空间形态能教会人们构筑生活。它诠释博物馆仓储空间的原则,是艺术实践,能为日常生活增添质感与温度。设计借鉴艺术藏品管理方式与典藏逻辑,将购物升华为塑造自我的艺术表达,顾客在一次次选择中完成自我更新与精炼。
项目信息
业主:HARMAY話梅
项目地点:北京市朝阳区合生汇
建筑面积:一层200平方米;二层420平方米
建成时间:2026年1月
设计范围:室内设计

姜谷粉丝 2026-03-17 10:52
雪山下的亚丁博物馆、山谷餐厅与村落更新
亚丁博物馆:位于四川省甘孜州稻城县亚丁村(《消失的地平线》蓝月山谷原型地),2024年5月建成,建筑面积约1万平方米。设计充分考虑与仙乃日、夏洛多吉两座神山的关系,利用场地10米高差打造“亚丁阳台”(三层观景平台),作为进入博物馆的空间序篇——游客通过人行桥从村内直达平台,可坐于下沉台阶直面雪山,避免护栏遮挡视线,屋顶成为村落新活力场所。博物馆为倒锥形态,竖向三层,自上而下的动线符合高海拔人体工学(避免爬楼),室内设弥散式供氧系统;外墙采用村里改造拆除的石块和木板,保留手工痕迹与高原气质;屋顶用鱼鳞状披叠金属板,象征雪山积雪,呼应藏地寺庙鎏金顶,成为高原地标。
山谷餐厅:位于亚丁村南侧陡峭山谷边缘,是观山栈道的终点(起点为博物馆),为离雪山最近的游客餐厅。
村落更新:始于2022年底,针对生态环境、文旅业态、建筑风貌、基础设施四大方面制定策略。内容包括穿越村庄的公路改道、护坡生态修复、水渠环境整治、既有建筑改造、地下管网铺设、屋面光伏安装等;采用微创式施工,充分听取村民意见,形成政府、专家、村民、商户多方参与的模式,恢复亚丁村藏文化原真风貌,解决此前业态单一、风貌破坏等问题。

中国建筑西南设计研究院
为亚丁博物馆、山谷餐厅及村落更新项目的设计单位,通过实地调研与文化梳理,将生态保护、文化传承与现代设计结合,打造符合高海拔地区的文旅项目。

話梅北京合生汇(AIM恺慕建筑设计)
空间概念:以“收藏馆”为核心,不定期呈现艺术、绘画、雕塑、摄影等主题展览,将品牌仓储基因演变为艺术现场。
设计特点:用金属与玻璃骨架营造轻盈开放场域,艺术品与美妆产品在极简框架中共同陈列,形成兼具艺术策展氛围与零售功能的复合美学空间;依托双层结构打造连贯探索路径,游客可从入口领取观展手册,自由漫步于空间中,体验沉浸而流动的美学旅程。
设计单位:由AIM恺慕建筑设计(AIM Architecture)负责外立面及室内设计,将“可随行的生活美学”转化为可感知的实体场景,融合未来奢华感与品牌特色。


查看完整版本: [-- 雪山下的亚丁博物馆、山谷餐厅与村落更新 / 中国建筑西南设计研究院//話梅北京合生汇 / AIM恺慕建筑设计[55P] --] [-- top --]


Powered by www.wdsz.net v8.7.1 Code ©2005-2018www.wdsz.net
Gzip enabled


沪ICP备:05041533号