
▲酒店山景
莫干山开元森泊度假酒店位于“江南最大的原生态湿地”下渚湖风景区内,自然景观条件得天独厚。项目定位高端隐奢酒店,设计选择以“倾听自然”的方式展开叙事,力图实现以极致的地域表达为核心的场所营造。通过环境、空间的形态组织,在建筑形式、空间格局、建筑材料等各方面重现当地的村落氛围,使建筑隐逸于山水之间,温柔地守护自然的独特之美。
01.
诗意栖居∣充分的在地性表达
酒店选址在自古以水乡泽国著称的浙北德清,藏匿于下渚湖风景区内一个风景如画的山谷中。场地占据了沿玉屏路两侧的约450亩用地范围,环绕静谧的茶园和天然林,湿地水系纵横,中心湖面水波掩映,拥有远离开发文明的最纯净天然环境。湖边经常会有成群白鹭飞过,让诗意的灵动与静谧同时显现。
设计以尊重自然为前提,通过构筑与自然环境肌理和特征相共鸣的在地性建筑环境,使原本的自然更明确有力地体現出來,成为与度假酒店建筑群共生的一个整体,最大程度地保留当地风貌。
项目总建筑面积6万平方米,包含了集中酒店、多片以湖景湿地、山居竹海、田园风情、山谷茶园为主题的度假别墅区,另外还配套了儿童主题酒店和游乐区。其中A1、A2标段主要包含集中酒店、各类度假别墅、山顶餐厅等。

▲酒店局部鸟瞰
02.
空间思想∣聚落的融合重塑
设计在布局上还原了如村落般的生活空间序列,营造出由不同主題构成的流动空间感受。场地密林湖泊,建筑散落于山林水边,顺应山水之势,层层叠退,形成弯曲狭长的聚落,同时充分考虑场地的完整性和各节点的景观视野,让到访的客人领略到独具特色的山地水域空间环境。

▲度假别墅局部夜景鸟瞰
一、总体布局∣随山傍水
设计顺应地形,有机地将建筑散落在山水之间。为了尽可能减少对坡地自然形态的干预,建筑进一步嵌入坡体与林地,与地形融为一体。所有的度假别墅隐于天然绿意之中,不仅让个体拥有了独有的自然景观,同时相互间不会遮挡彼此观赏全景的视野。在最大可能保留原生态植被的前提下,尽可能降低建筑在自然中的存在感,营造出自然朴素的环境意向。
设计将“水”作为整个度假村的景观核心,集中式酒店和部分度假别墅都傍水而设,山光水色间,为人们提供了一处远离城市喧嚣的静谧之地。

▲沿湖看集中式酒店

▲度假别墅局部鸟瞰
二、设计立意∣“森泊”自然
受到品牌理念的启发,设计围绕“森泊”的立意徐徐展开,旨在打造“让心灵停泊于森山秀水之间”的山野之境,使建筑与环境的对话极度舒适和谐。

▲沿湖看度假别墅
03.
建筑语言∣多样性的丰富展现
度假村的建筑群不仅与周边自然环境充分和谐融合,而且各自展现出自身的鲜明特质,强调在统一中的“和而不同”。
一、集中式酒店∣双层螺旋玻璃大堂

▲集中式酒店双层螺旋玻璃大堂
集中式酒店体量较长,东西向约154米,由独具特色的玻璃大堂和客房组成。酒店大堂为双层玻璃圆锥体套叠的形式,内层玻璃圆锥体通过旋扭的手法凸显摇曳之姿,形成湖岸特有的标志。玻璃体的外侧采用木百叶幕墙作为第二层皮肤,底层辅以粗琢石,加强圆锥体的造型趋势,衬托出轻盈灵动的形态。
独特的参数化曲面系统采用双重几何逻辑构建,外层通过软件对各线性曲面进行精确的把控,内层钢结构网架呈现放射状肌理,形成虚实相生的空间张力。在施工图进行过程中,同步建模同步研究,从而保证项目后期良好的完成度。建筑的叙事性贯穿于螺旋上升的空间序列,最终升华为立面的流动表皮。这一连续的空间装置不仅实现了7.2米高差的三维穿越,更通过360度环景视廊将湖面景观纳入建筑体验。双层玻璃幕墙消隐室内外界限,暮色中的螺旋光带蜿蜒流动。

▲集中式酒店
对于空间布局的用心不仅体现在公共开放空間的設計,更体現在踏入酒店的每一步。进入酒店即以一潭碧水迎客,底层面向湖面开敞,将湖面景观引入大堂。空间功能与形式完美结合,使客人在办理入住时即可屏息眺望湖景全景,不离开大厅便可第一时间直接亲近自然。
客房部分的阳台立面采用简单直接的木格栅形式,具有乡野趣味。木扶手与玻璃栏板结合,整体的木饰面处理,使建筑风格更加生态自然。

▲集中式酒店

▲集中酒店客房立面细部
二、度假别墅群∣融入山水、量身定制
度假别墅主要位于度假村的北区、湖滨区及山谷区,单体类型繁多,地形复杂。多数坐落在山腰湖畔,风景独绝,打造出亲近自然的沉浸式住宿体验。

▲湖滨别墅

▲湖滨别墅鸟瞰
度假别墅部分有二十多种完全不同的类型,如蛇形别墅、山地别墅、Party别墅、泳池别墅、蜜月别墅、玻璃别墅、树屋、欢迎中心等。建筑随着地形起伏而变化,让人移步异景。户型设计的多样性形成了群落变化丰富、客户体验选择多样的特色度假空间。

▲蛇形别墅对应平面图

▲蛇形别墅
▲Party别墅对应平面图
▲Party别墅

▲Party别墅

▲泳池别墅对应一层平面图

▲泳池别墅

▲森林别墅对应平面图

▲森林别墅

▲蜜月别墅对应平面图

▲蜜月别墅

▲玻璃别墅对应平面图

▲玻璃别墅
伫立在林间溪边的树屋,让人们可以在树梢之间观赏、休憩。栈桥和树屋的架空,身临其境,感受自然的美好。把地面层最大限度的让给环境,以获得一个自由的全景花园。专门设置的滑梯、吊索等娱乐设施,方便孩子游戏,也提供特别的山野童趣。

▲树屋别墅平面图

▲树屋别墅

▲树屋别墅
04.
建筑细部∣乡土材料与自然体验
设计将自然作为理念的核心要素,提取自然元素作为中心装饰,用质朴的材料和传统的建造工艺做法体现隐奢酒店毫不勉强且非常独特的自然风格,为游客递上一张地域展陈的新名片。

▲集中酒店大堂中庭

▲集中酒店大堂中庭
建筑在室内材质选择上多采用竹制、木材、布艺等自然要素,有效提升了环境融合度,增加肌理感的同时,为空间注入自然气息。
身边环绕的永不静止的水流、地域性的植被、当地各种材质构成的丰富的建築立面肌理,甚至手工精心制作的具有表面纹理的建筑細部,这些都在时刻唤醒人们的多种自然知觉体验。

▲Party别墅起居室

▲Party别墅起居室

▲湖滨别墅起居室

▲树屋别墅客房

▲别墅客房
05.
特色空间∣山环水绕,尽收眼底
山顶餐厅以最简洁的形式隐入集中酒店背后的山顶之颠,遗世独立,俯瞰整个景区。无论是室外环境处理,还是室内空间延展,都避免复杂工业符号的视觉填塞,真正做到还感官于自然。

▲山顶餐厅

▲山顶餐厅
大面积落地窗将俯视间的山水绿意引入室内,天花板用编织竹筐作为装饰,不仅柔和了灯光的生硬感,而且丰富了整个空间的景深和层次。

▲山顶餐厅室内空间

▲山顶餐厅平台
结语
整个设计以最大限度保护原生态环境作为设计原则,充分尊重场地、尊重自然。无论在山地还是湖滨,都尽可能地减少对自然环境的影响,利用下渚湖风景区的特有风貌,将建筑完全隐于山水密林之间,最大限度地争取与自然的和谐统一。
建筑多采用仿生材质,整体风格生态自然,完美契合周边环境。设计师以关注日常体验、创造地域性场所精神、营造丰富感知为主要目标,通过对地域特色的极致表达来创造一种完全远离城市喧嚣、随时走入自然的“大地境遇”,使诗意的栖居成为人们可望且可及的居住理想。

▲集中酒店鸟瞰
设计图纸

▲集中酒店总平面图 @dwp

▲度假别墅区总平面图@dwp

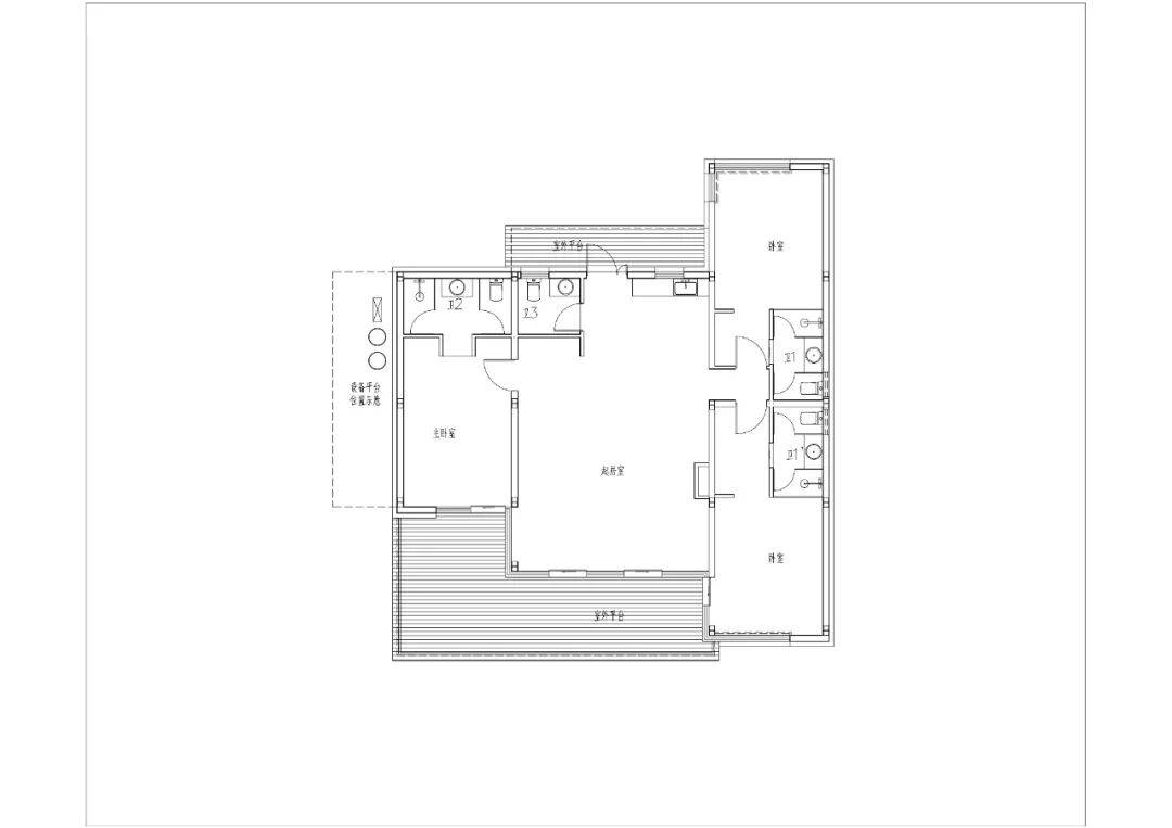
▲集中酒店一层平面

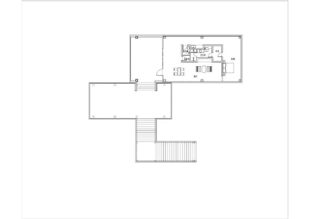
▲集中酒店二层平面

▲集中酒店立面图

▲集中酒店剖面图

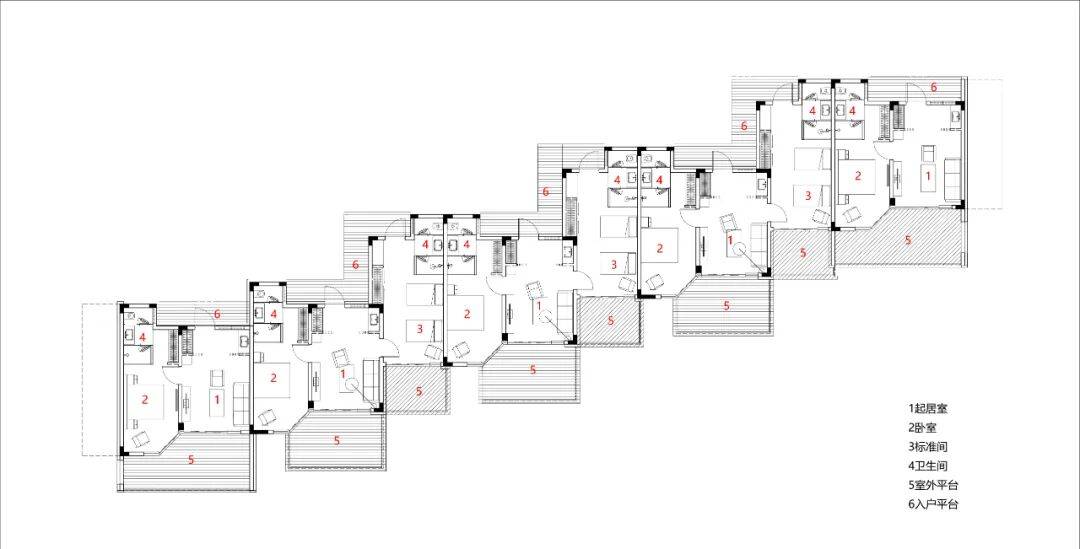
▲蛇形别墅平面图
▲蛇形别墅立面图
▲蛇形别墅剖面图

▲泳池别墅一层平面图

▲泳池别墅二层平面图
▲泳池别墅立面图

▲泳池别墅剖面图

▲Party别墅平面图

▲Party别墅立面图
项目地址:浙江/德清/下渚湖风景区
设计单位:中国联合工程有限公司
合作单位:Design Worldwide Partnership(DWP)(现瑜特寰城(上海)建筑设计咨询有限公司)
业主:德清防风文化旅游发展有限公司
项目总负责:姜传鉷、汪 洁
建筑设计负责:汪 洁 Scoot Whittaker
团队:汪 洁、 Scoot Whittaker、张宗兰、钟渊庭、王婧逸、林鹏、薄欢欢
结构设计负责:方小军 团队:方小军、虞明杰、莫盛浩、陆夏晔、钟峥
机电设计负责:涂有霞(强电)、刘福凯(给排水)、何君(暖通)
团队:涂有霞、周涛、刘福凯、沈嘉辰、何君、吴纯金
建筑摄影:奥观建筑视觉
项目建筑面积:60000㎡
设计-建成时间:2016-2020
所获奖项:
2023年度浙江省勘察设计行业优秀勘察设计成果建筑工程设计类一等奖