切换到宽版
  • 5阅读
  • 1回复

[奇观]深圳OIL club改造设计 / 重塑建筑[52P] [复制链接]

上一主题 下一主题
在线jjybzxw

UID: 551814

 

发帖
236158
金币
813380
道行
2006
原创
2459
奖券
3500
斑龄
44
道券
1548
获奖
0
座驾
设备
摄影级
在线时间: 50310(小时)
注册时间: 2008-10-01
最后登录: 2026-03-23
只看楼主 倒序阅读 楼主  发表于: 前天 10:13
— 本帖被 xgch 执行加亮操作(2026-03-21) —


大家都说OIL club是电音传奇,但没人知道,这个70平米的新空间(ROOMTOO),是在造价失控边缘被“救”回来的。
背景:极限诉求下的命题
我们与夜店OIL club的主理人杨杨结缘于2020年。她本计划委托我们将园内仓库改造成咖啡厅,后因疫情搁置。

▲仓库改造成咖啡厅 ©REFORM重塑建筑
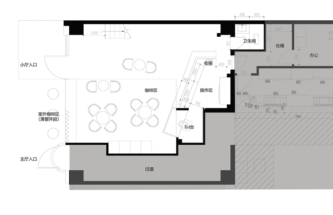
2024年底,项目重启。改造沿街一间约70㎡的空间,重塑为“昼咖夜舞”的复合功能空间(ROOMTOO)。主理人杨杨的核心诉求非常明确:具备极致辨识度,且造价必须严控。 这本质上是一场关于“非标建构”与“极致性价比”的商业博弈。


▲原始场地 ©REFORM重塑建筑

▲原始 平面图 ©REFORM重塑建筑
第一版方案:理想主义的立面实验
我们最初提出了两个核心策略:
一、开合的立面
采用大面积玻璃外墙以满足咖啡厅日间采光,通过通高折叠门激活室外空间 。门头的不锈钢半圆柱是去主厅的玄关,悬浮的方形玻璃钢格栅遮挡空调外机。

▲第一版方案 日景©REFORM重塑建筑

▲第一版方案 平面图©REFORM重塑建筑
二、漂浮的盒子
舍弃内部装饰,利用钢结构单边悬挑移除外侧柱子,增加首层使用率。阁楼像一个发光的盒子悬浮在街道上。

▲第一版方案 首层©REFORM重塑建筑

▲第一版方案 首层©REFORM重塑建筑

▲第一版方案 阁楼©REFORM重塑建筑

▲第一版方案 夜景©REFORM重塑建筑
问题:
物业对接受阻(门头不可有突出的造型),且玻璃材质无法满足高强度锐舞场景的隔音需求,首版作废。
第二版方案:转向粗犷原始的工业逻辑
2025年初,我们调整了方向:
一、隔音实墙
与杨杨商议后决定放弃日间咖啡场景,将玻璃换成隔音更佳的实墙,轮廓与邻建筑保持一致。

▲立面开窗对比研究©REFORM重塑建筑
二、冷却塔填料模板
为了匹配OIL club“工业感”的调性,我们决定暴露立面的混凝土结构。经过反复比选,创新性地使用PVC冷却塔填料作为浇筑模板,赋予混凝土独特的工业肌理 。

▲模板材料研究©REFORM重塑建筑

▲PVC冷却塔填料©REFORM重塑建筑




▲立面纹理对比研究©REFORM重塑建筑
三、电动提升窗与隐形门
窗洞成为外墙唯一的视觉焦点,引导内外互动。通过电动提升窗增加仪式感,并配合隐形门,确保立面的整体感与简洁度。


▲折叠窗与提升窗 对比研究©REFORM重塑建筑

▲隐形门©REFORM重塑建筑
▲第二版方案 夜景©REFORM重塑建筑
问题:
随后物业出台“阁楼不可上人”的新政,杨杨也提出优化舞池声场的需求,迫使我们再次重构室内方案。
第三版方案:声学与布局的深度重组
同年4月,方案进入第三轮迭代:
一、内外双舞台
重新调整布局,将DJ台置于窗边。开启电动窗后,DJ可同时驱动室内外两个舞池,极大提升了空间的商业弹性 。阁楼缩小面积,仅作为仓库不对外开放。

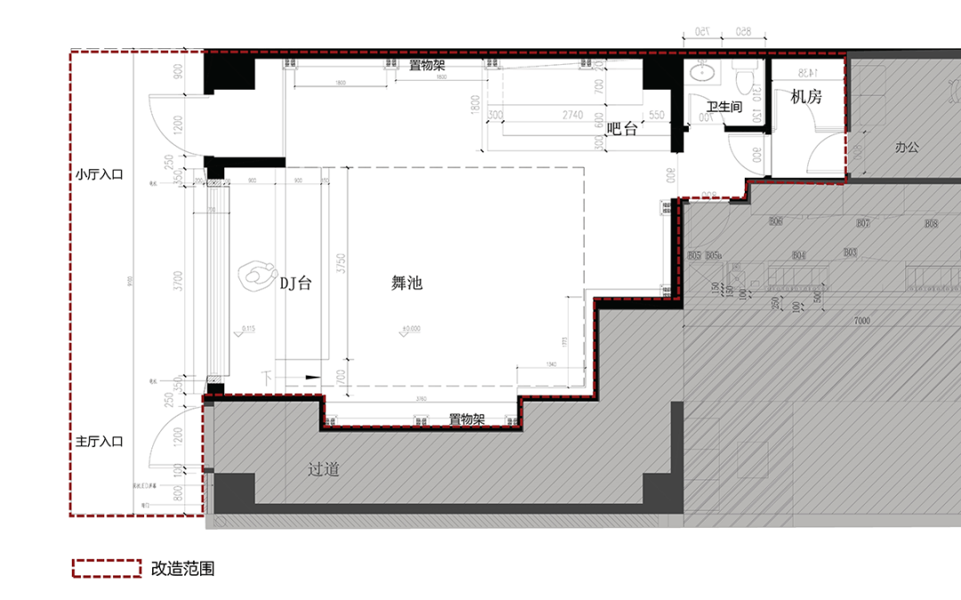
▲最终平面图 ©REFORM重塑建筑

▲DJ台面向室外 ©REFORM重塑建筑,摄影:孙辉煌
二、天然声学材料
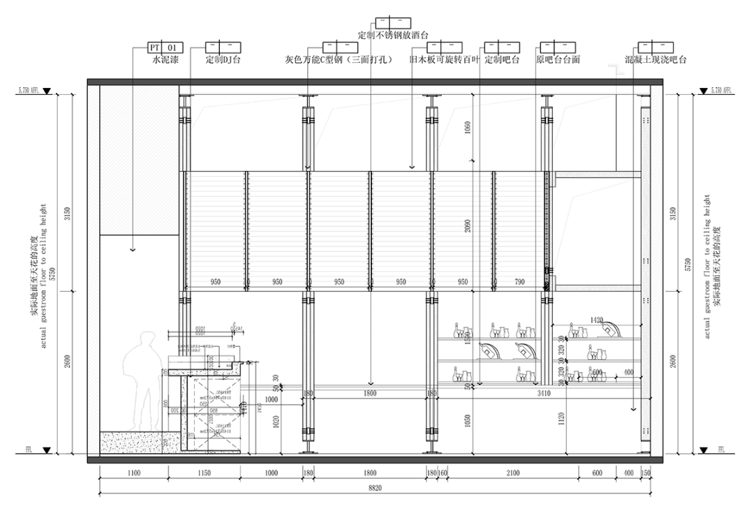
阁楼由钢结构改为木结构。利用木材天然的吸音与扩散特性优化声场,实现了声学、美学与造价的平衡。




▲室内设计对比研究 ©REFORM重塑建筑
问题:
与多个供应商沟通后发现,立面现浇清水混凝土的方案对工艺要求过高,造价面临失控风险。
实施方案:商业落地的最优解
2025年8月,我们提出了最终的落地版本:
一、纹理预制板
立面弃用现浇,改为“砌块 + 混凝土预制板”。我们成功将第二版中那种标志性的“冷却塔填料纹理”转移到了预制板上。 这不仅保住了最初的设计灵魂,还大幅降低了施工难度与造价,通过精密拼缝设计解决了预制板与窗洞、门的冲突。

▲预制板 立面分缝设计©REFORM重塑建筑

▲预制板©REFORM重塑建筑

▲立面 ©REFORM重塑建筑,摄影:孙辉煌

▲立面细节 ©REFORM重塑建筑,摄影:孙辉煌

▲立面细节 ©REFORM重塑建筑,摄影:孙辉煌

▲立面细节 ©REFORM重塑建筑,摄影:孙辉煌
二、钢木混合与回收木料
利用钢拉索取消阁楼的外柱,降低对舞池干扰。回收老木头的质感不仅环保,更换取了“不可复制”的非标质感,比昂贵的成品吸音板更具商业性价比。

▲木结构设计 ©REFORM重塑建筑

▲回收老木板 ©REFORM重塑建筑

▲室内 ©REFORM重塑建筑,摄影:孙辉煌

▲室内 ©REFORM重塑建筑,摄影:孙辉煌

▲室内 ©REFORM重塑建筑,摄影:孙辉煌

▲室内 ©REFORM重塑建筑,摄影:孙辉煌

▲室内细节 ©REFORM重塑建筑,摄影:孙辉煌
施工现场:45天的极限拉扯
为了赶上OIL club八周年庆,工期仅一个半月,现场突发状况不断:
一、地基找平
拆除后发现原始地面坡度严重。我们紧急将预制工字钢柱基改为现浇基础,动态调节高度以确保阁楼水平。

▲场地拆除完成 ©REFORM重塑建筑

▲施工图 ©REFORM重塑建筑

▲施工图 ©REFORM重塑建筑

▲现浇基础 ©REFORM重塑建筑

▲室内细节 ©REFORM重塑建筑,摄影:孙辉煌
二、门荷载与把手优化
隐形门因外挂混凝土板荷载巨大,我们专门定制了重型门轴与助力器,并反复测试把手尺寸,以适应女性用户的力量和抓握感。

▲立面 ©REFORM重塑建筑,摄影:孙辉煌

▲入户门细节 ©REFORM重塑建筑

▲门把手测试模型 ©REFORM重塑建筑
三、电机集成
受预算与电机散热限制,电动提升窗方案历经多次修改。临近竣工才找到合适的产品,还原了极致的隐框效果。

▲电动提升窗 ©REFORM重塑建筑,摄影:孙辉煌
总结:建筑师作为复杂问题的解决者
其实好的商业设计,往往不是预算给出来的,而是被各种限制“逼”出来的。设计师的价值不仅在于创意输出,更在于平衡多方利益并解决突发问题的能力 。在OIL项目中,我们通过大量的非标建构细节,在造价、功能、艺术与品牌价值之间找到了那个微妙的平衡点 。最终各方都很满意方案的落地完成度。
感谢施工方的专业表现与业主对创新的宽容支持。

▲活动场景 ©REFORM重塑建筑,摄影:孙辉煌

▲活动场景 ©REFORM重塑建筑,摄影:孙辉煌

▲八周年活动现场
项目信息
项目名称:深圳OIL club改造设计
项目地点:广东省深圳市福田区
建筑面积:67平方米
建成时间:2025.10
设计时间:2024.12-2025.08
方案设计:深圳市重塑建筑有限公司
团队成员:舒赛、关静雯
施工单位:深圳市家悦美装饰工程有限公司
摄影:孙辉煌
撰文:舒赛
1条评分金币+35
xgch 金币 +35 辛苦了,感谢您无私奉献的精神! 前天 21:52
山庄提示: 道行不够,道券不够?---☆点此充值☆
 
在线jjybzxw

UID: 551814


发帖
236158
金币
813380
道行
2006
原创
2459
奖券
3500
斑龄
44
道券
1548
获奖
0
座驾
设备
摄影级
在线时间: 50310(小时)
注册时间: 2008-10-01
最后登录: 2026-03-23
只看该作者 沙发  发表于: 前天 10:15
深圳OIL club改造设计:极限挑战下的创意蜕变
引言
在深圳福田区,OIL club作为电音界的传奇场所,其改造项目面临着诸多极限诉求。从最初计划改造为咖啡厅到最终成为“昼咖夜舞”的复合功能空间(ROOMTOO),这一过程充满了挑战与惊喜。本文将深入剖析该项目从背景缘由、方案迭代到施工现场的各个环节,展现建筑师在复杂问题面前的解决能力和创意智慧。
项目背景:从咖啡厅到复合空间的转变
结缘与搁置
2020年,设计团队与OIL club主理人杨杨结缘,原本计划将园内仓库改造成咖啡厅,然而疫情的突然来袭使得项目被迫搁置。这一搁置不仅打乱了原有的计划,也为后续项目的重启带来了新的思考和方向。
项目重启与核心诉求
2024年底,项目重新启动。此次改造的对象是沿街一间约70㎡的空间,要将其重塑为“昼咖夜舞”的复合功能空间。主理人杨杨提出了两个核心诉求:一是空间要具备极致辨识度,能够在众多场所中脱颖而出;二是造价必须严控,确保项目在经济上的可行性。这看似矛盾的诉求,实际上是一场关于“非标建构”与“极致性价比”的商业博弈,为设计团队带来了巨大的挑战。
方案迭代:不断调整与优化
第一版方案:理想主义的立面实验
核心策略
设计团队最初提出了两个核心策略。一是开合的立面,采用大面积玻璃外墙以满足咖啡厅日间采光需求,同时通过通高折叠门激活室外空间。门头的不锈钢半圆柱作为去主厅的玄关,悬浮的方形玻璃钢格栅则用于遮挡空调外机。二是漂浮的盒子,舍弃内部装饰,利用钢结构单边悬挑移除外侧柱子,增加首层使用率,使阁楼像一个发光的盒子悬浮在街道上。
问题出现
然而,这一理想主义的方案在实施过程中遇到了诸多问题。物业对门头造型有严格限制,不允许有突出的造型,这使得门头的不锈钢半圆柱设计无法通过。此外,玻璃材质无法满足高强度锐舞场景的隔音需求,导致首版方案作废。这表明在设计过程中,不仅要考虑创意和美观,还要充分考虑实际的使用需求和物业规定。
第二版方案:转向粗犷原始的工业逻辑
调整方向
面对第一版方案的问题,2025年初设计团队调整了方向。一是采用隔音实墙,与杨杨商议后决定放弃日间咖啡场景,将玻璃换成隔音更佳的实墙,轮廓与邻建筑保持一致,以解决隔音问题并符合物业要求。二是使用冷却塔填料模板,为了匹配OIL club“工业感”的调性,暴露立面的混凝土结构,并创新性地使用PVC冷却塔填料作为浇筑模板,赋予混凝土独特的工业肌理。三是设置电动提升窗与隐形门,窗洞成为外墙唯一的视觉焦点,引导内外互动,通过电动提升窗增加仪式感,并配合隐形门确保立面的整体感与简洁度。
新问题产生
但第二版方案也并非一帆风顺。随后物业出台“阁楼不可上人”的新政,这限制了阁楼的使用功能。同时,杨杨提出优化舞池声场的需求,迫使设计团队再次重构室内方案。这说明在项目推进过程中,政策和业主需求的变化是不可避免的,设计团队需要具备灵活应变的能力。
第三版方案:声学与布局的深度重组
布局调整
同年4月,方案进入第三轮迭代。设计团队重新调整布局,采用内外双舞台的设计,将DJ台置于窗边。开启电动窗后,DJ可同时驱动室内外两个舞池,极大提升了空间的商业弹性。阁楼缩小面积,仅作为仓库不对外开放,以适应物业的新政策。
声学优化
在声学方面,阁楼由钢结构改为木结构,利用木材天然的吸音与扩散特性优化声场,实现了声学、美学与造价的平衡。这一调整不仅解决了舞池声场的问题,还为空间增添了一份自然的质感。
再次面临挑战
然而,与多个供应商沟通后发现,立面现浇清水混凝土的方案对工艺要求过高,造价面临失控风险。这表明在追求设计效果的同时,还需要充分考虑施工工艺和成本因素,确保项目的可行性。
实施方案:商业落地的最优解
纹理预制板
2025年8月,设计团队提出了最终的落地版本。立面弃用现浇,改为“砌块 + 混凝土预制板”,成功将第二版中标志性的“冷却塔填料纹理”转移到了预制板上。这不仅保住了最初的设计灵魂,还大幅降低了施工难度与造价。通过精密拼缝设计解决了预制板与窗洞、门的冲突,使立面效果更加完美。
钢木混合与回收木料
在结构方面,利用钢拉索取消阁楼的外柱,降低对舞池的干扰。同时,回收老木头的质感不仅环保,还取代了昂贵的成品吸音板,更具商业性价比。这种创新的材料运用方式,既体现了环保理念,又为项目节省了成本。
施工现场:45天的极限拉扯
地基找平
为了赶上OIL club八周年庆,工期仅有一个半月,时间非常紧张。拆除后发现原始地面坡度严重,这给施工带来了极大的困难。设计团队紧急将预制工字钢柱基改为现浇基础,动态调节高度以确保阁楼水平。这一调整体现了施工过程中的灵活性和应变能力,确保了工程的顺利进行。
门荷载与把手优化
隐形门因外挂混凝土板荷载巨大,为了保证门的正常使用,设计团队专门定制了重型门轴与助力器,并反复测试把手尺寸,以适应女性用户的力量和抓握感。这种对细节的关注和人性化设计,提高了用户的使用体验。
电机集成
受预算与电机散热限制,电动提升窗方案历经多次修改。临近竣工才找到合适的产品,还原了极致的隐框效果。这一过程充分体现了在预算和性能限制下,设计团队不断寻找解决方案的努力和坚持。
总结:建筑师的价值与项目意义
建筑师的价值
在OIL项目中,建筑师的价值得到了充分体现。好的商业设计往往不是预算给出来的,而是被各种限制“逼”出来的。设计师不仅要有创意输出的能力,更要具备平衡多方利益并解决突发问题的能力。通过大量的非标建构细节,设计团队在造价、功能、艺术与品牌价值之间找到了那个微妙的平衡点,使项目最终各方都很满意方案的落地完成度。
项目意义
深圳OIL club改造项目不仅为电音爱好者提供了一个全新的空间体验,也为商业建筑设计提供了宝贵的经验。它展示了在面对各种限制和挑战时,如何通过创新的设计和灵活的应变能力,实现项目的成功落地。同时,该项目也强调了团队合作的重要性,感谢施工方的专业表现与业主对创新的宽容支持,使得这一项目能够顺利完成。
项目信息
基本信息
项目名称:深圳OIL club改造设计
项目地点:广东省深圳市福田区
建筑面积:67平方米
建成时间:2025.10
设计时间:2024.12 - 2025.08
团队信息
方案设计:深圳市重塑建筑有限公司
团队成员:舒赛、关静雯
施工单位:深圳市家悦美装饰工程有限公司
摄影:孙辉煌
撰文:舒赛
1条评分金币+6
xgch 金币 +6 回复认真,加分鼓励 前天 21:52
如何不发帖就快速得到金币道行
 
快速回复
限120 字节
认真回复加分,灌水扣分~
 
上一个 下一个